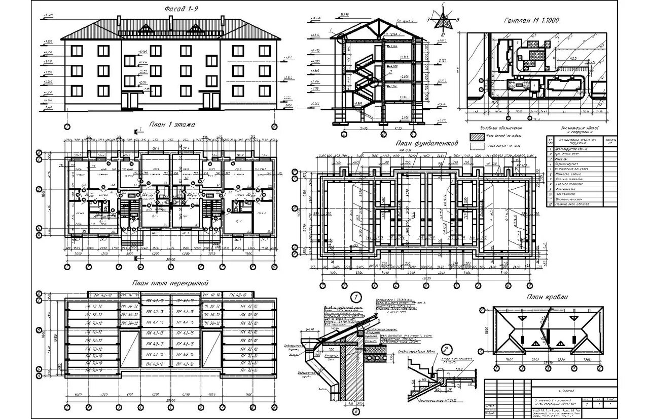
Фасад разрез здания