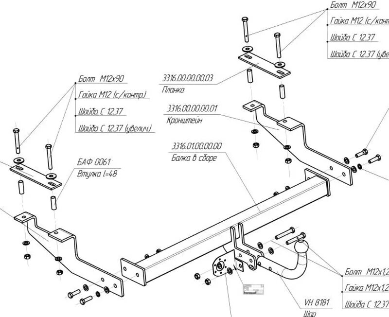
Фаркоп ховер н3