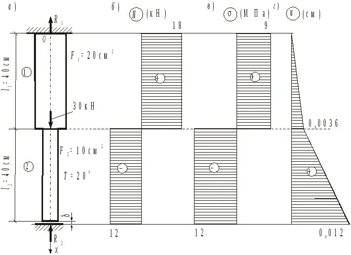
Эпюра перемещений при растяжении сжатии