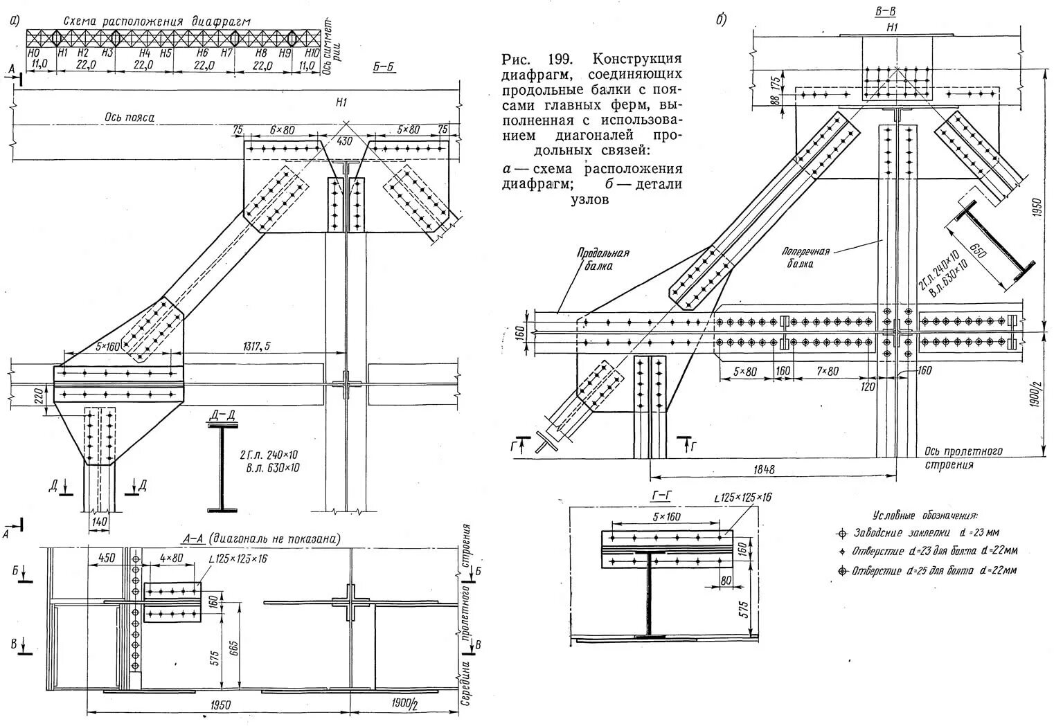
Элементы пролетного строения