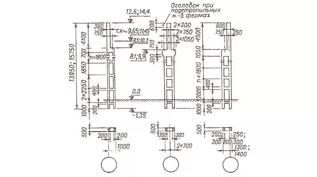
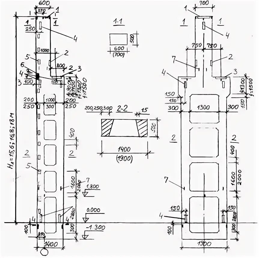
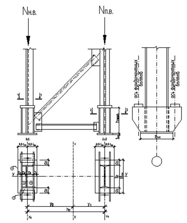
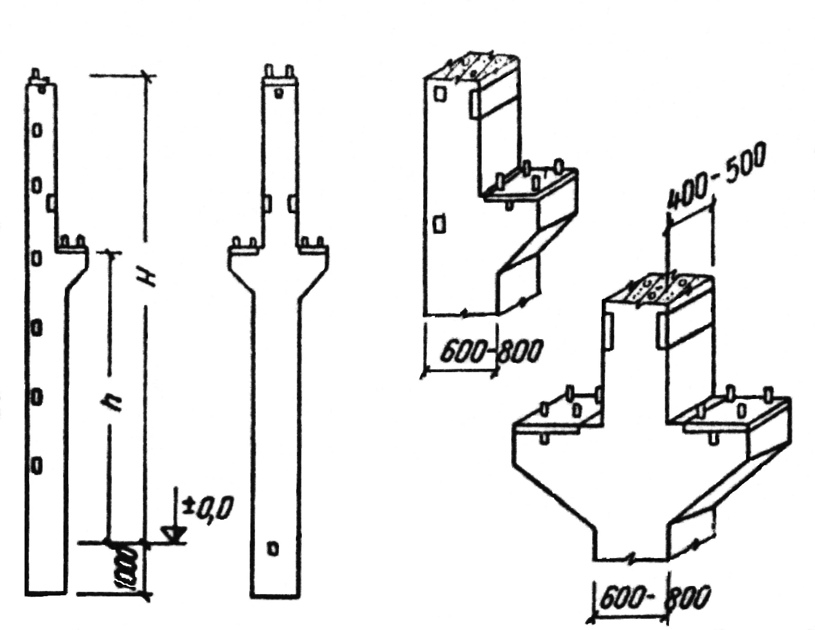
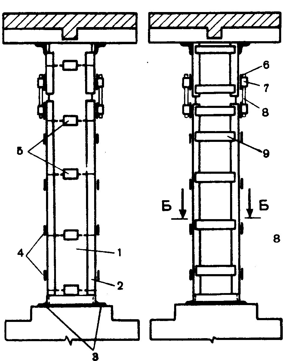
Двухветвевые колонны