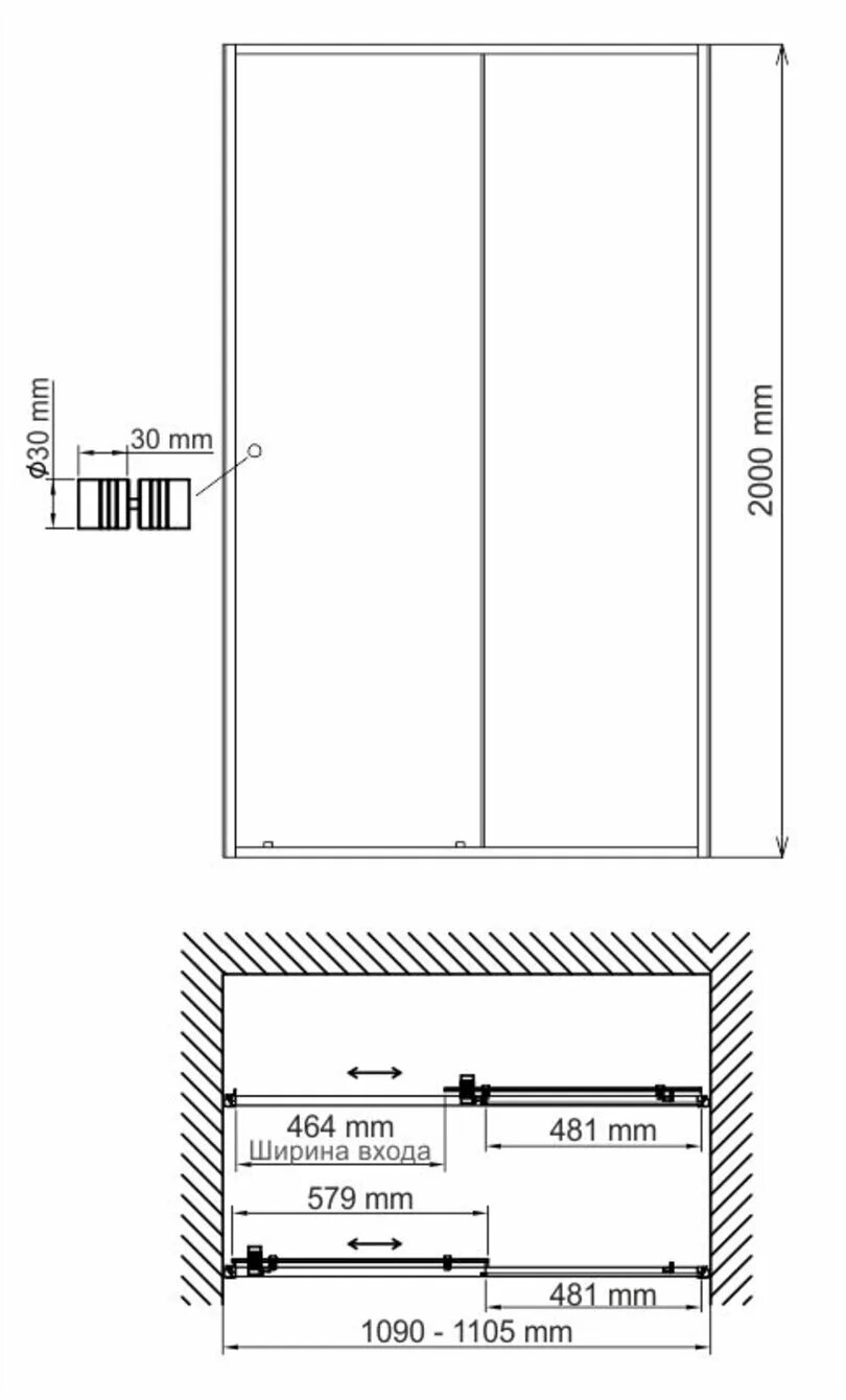
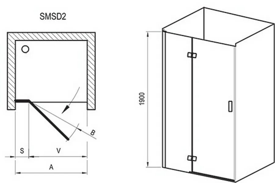
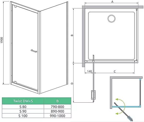
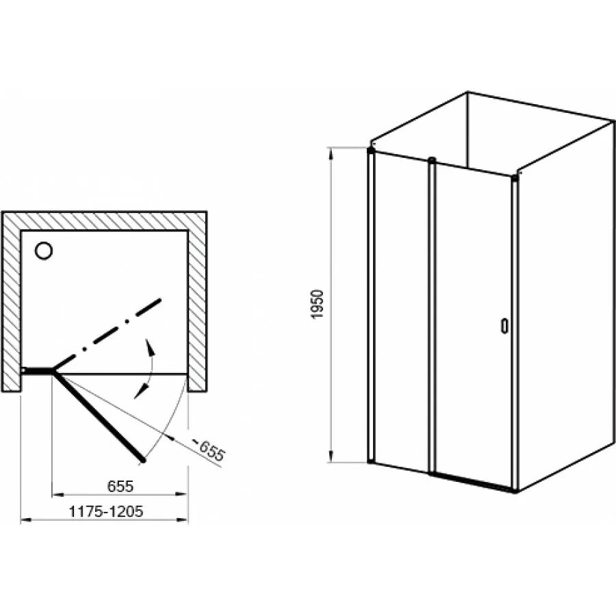
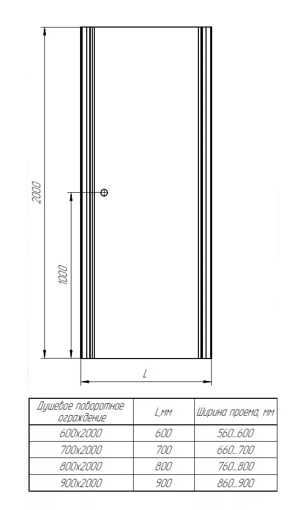
Двери в душевую размеры