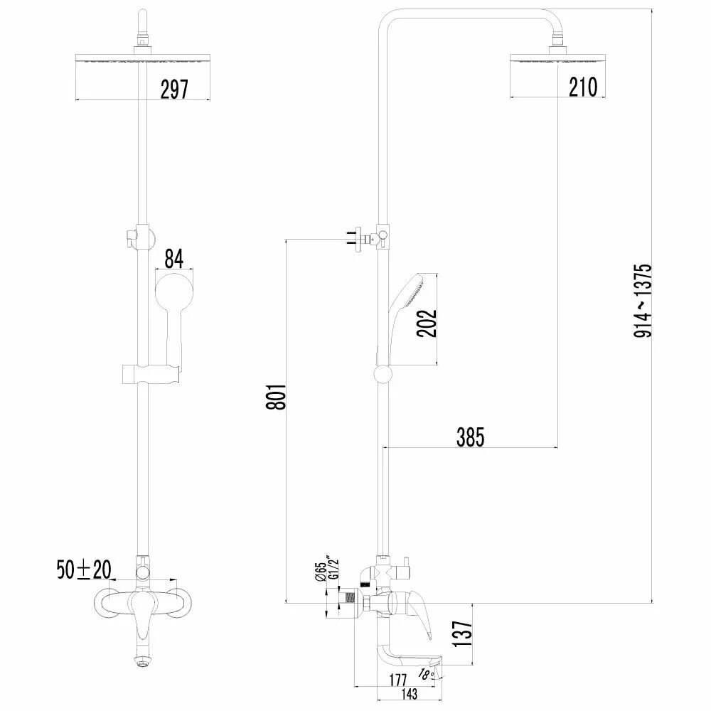
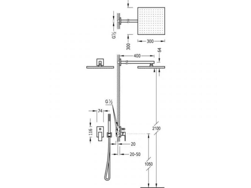
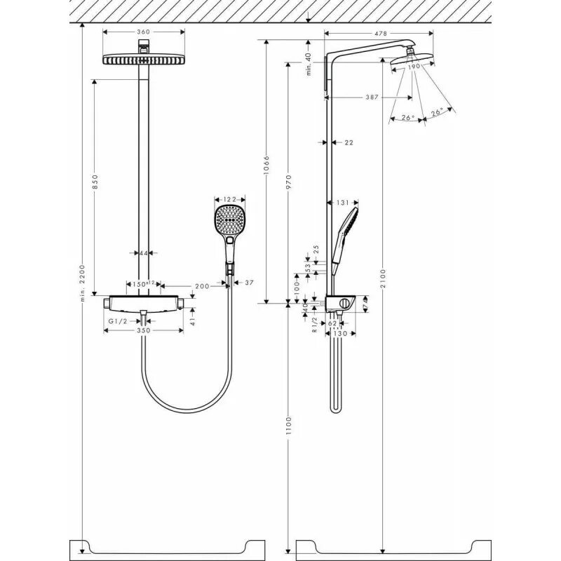
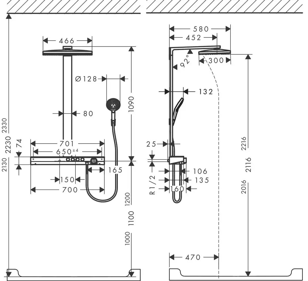
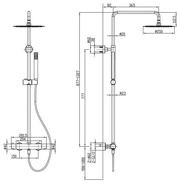
Душевой смеситель размер