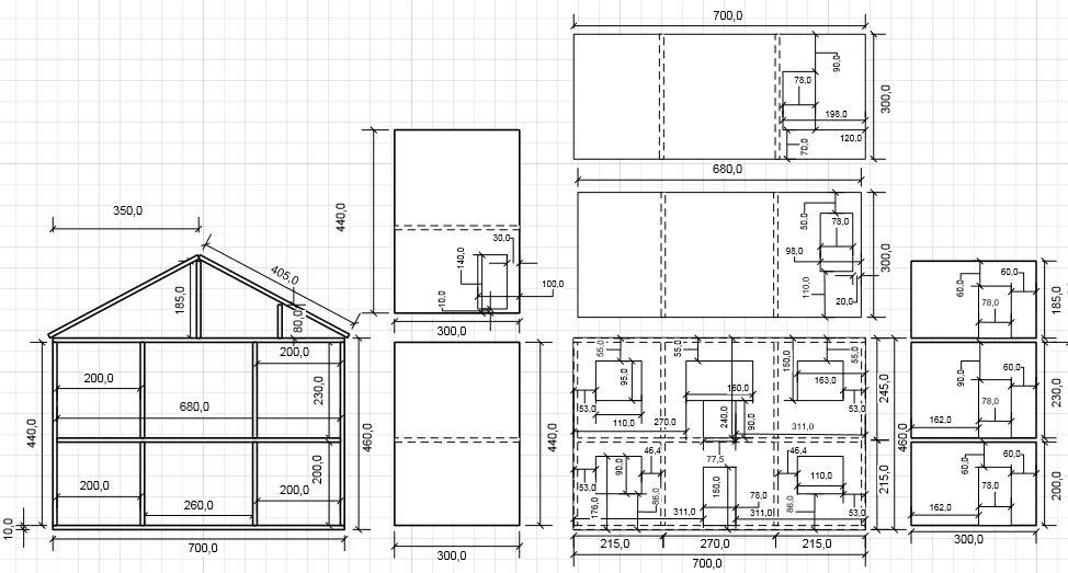
Дом из дерева своими руками чертежи