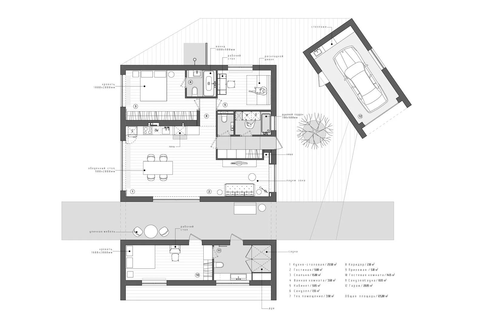
Дом инт