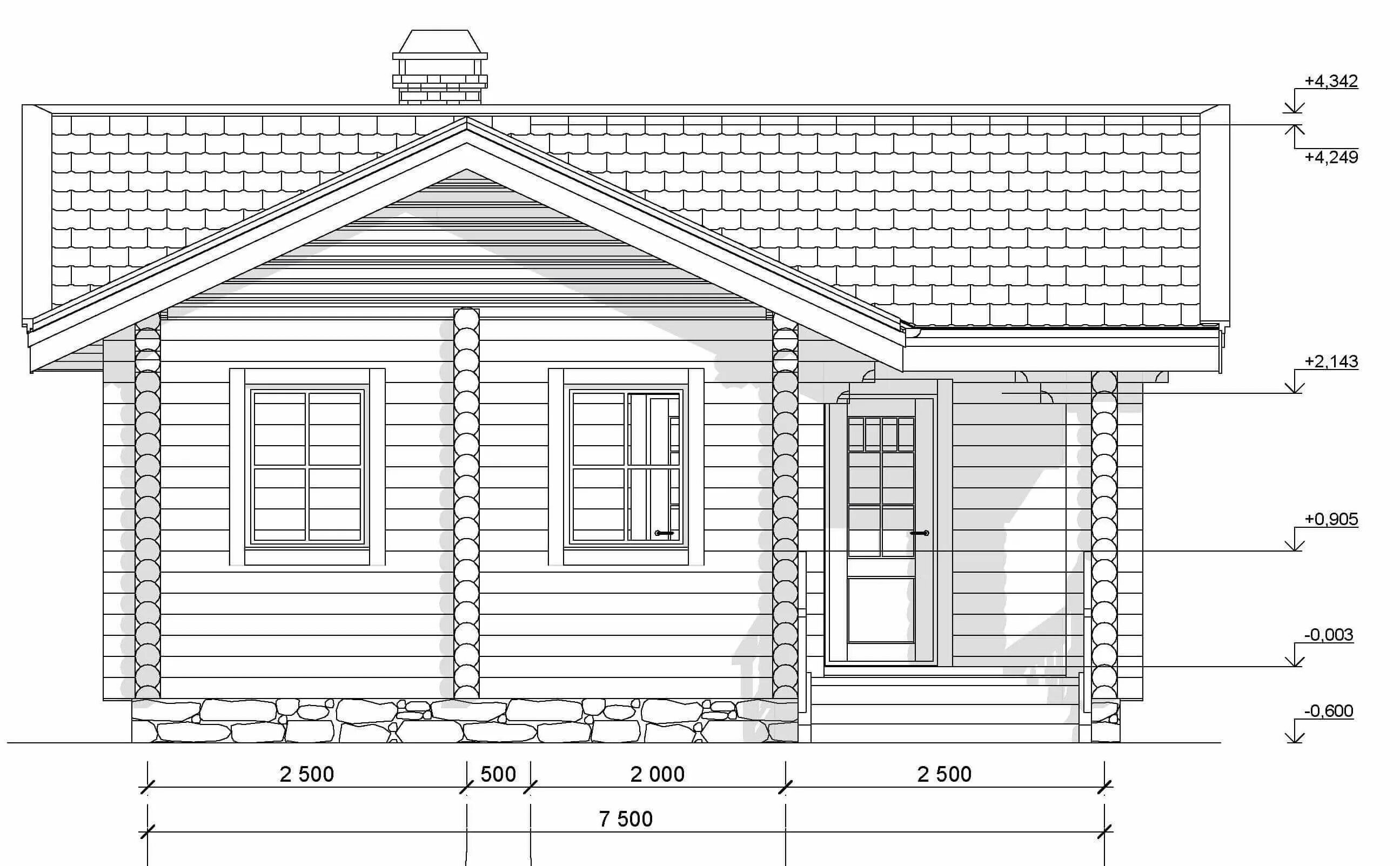
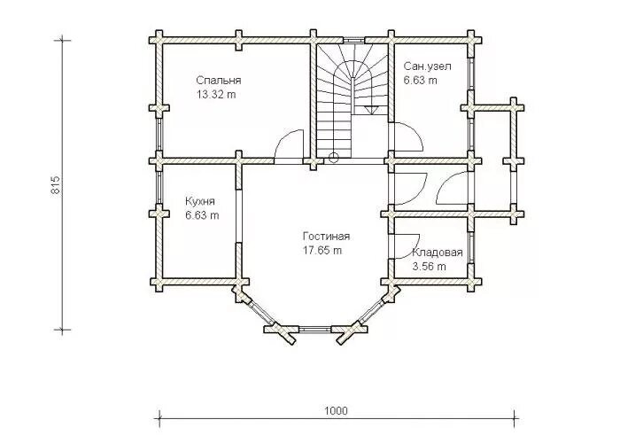
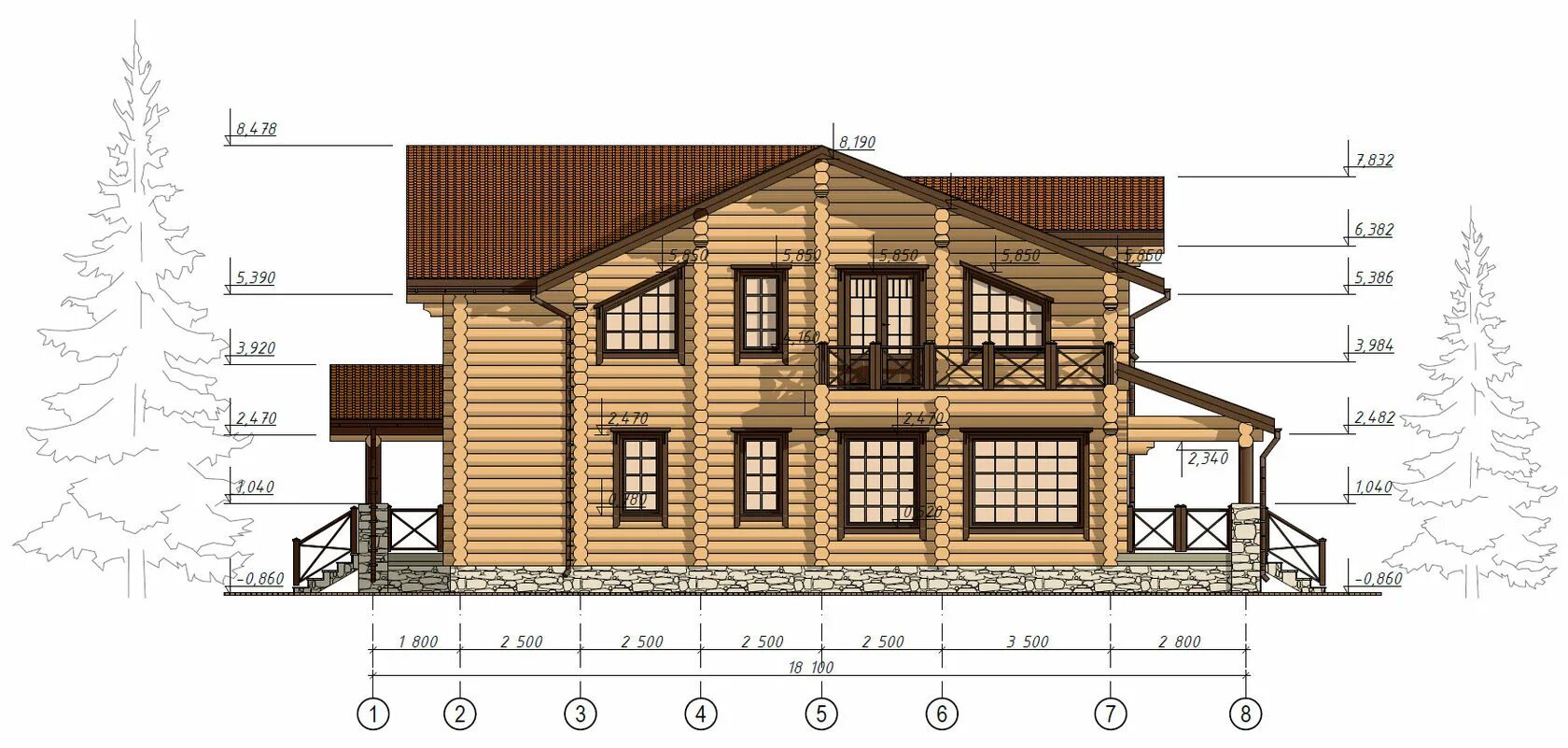
Дом бревна чертежи