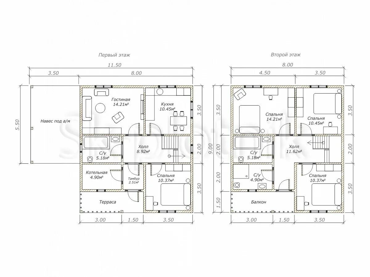
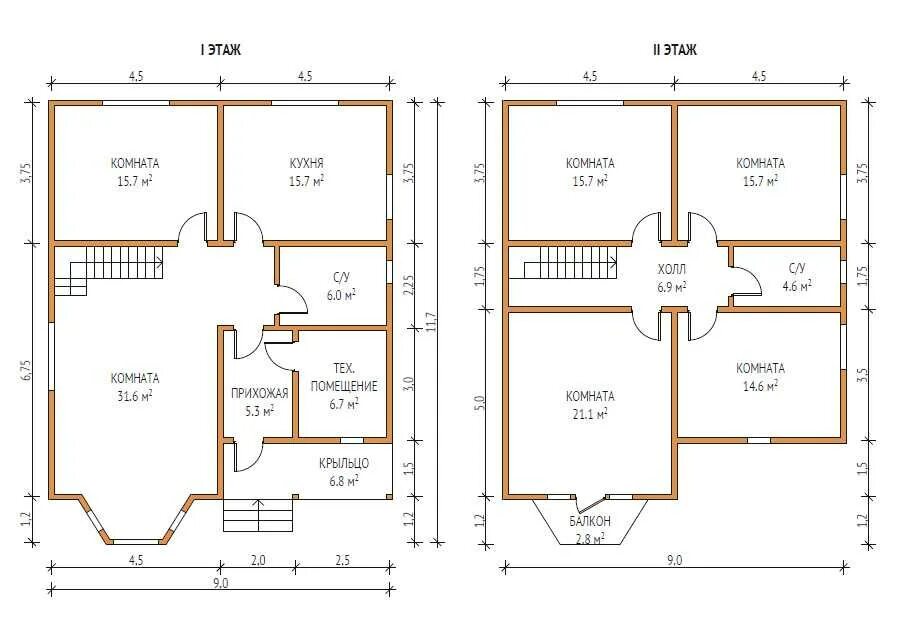
Дом 2 за 10 число