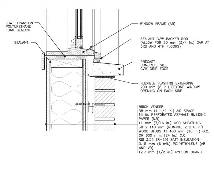
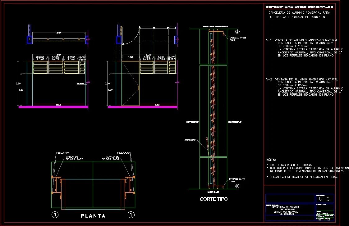
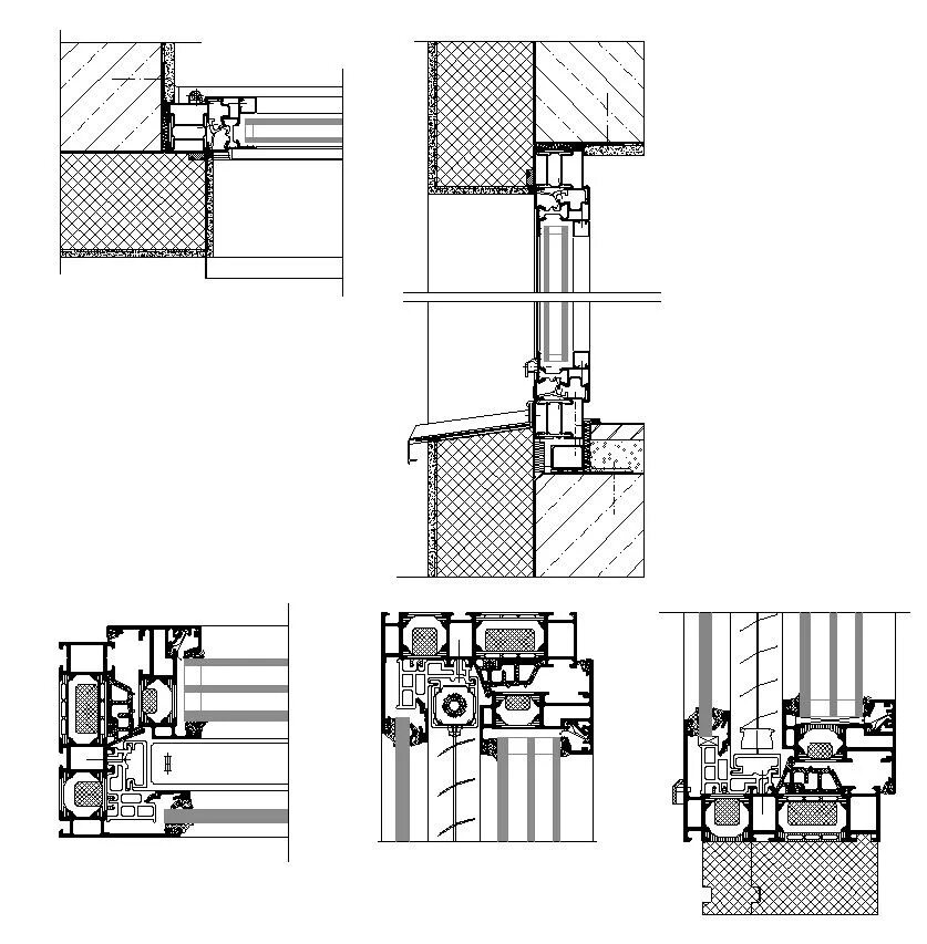
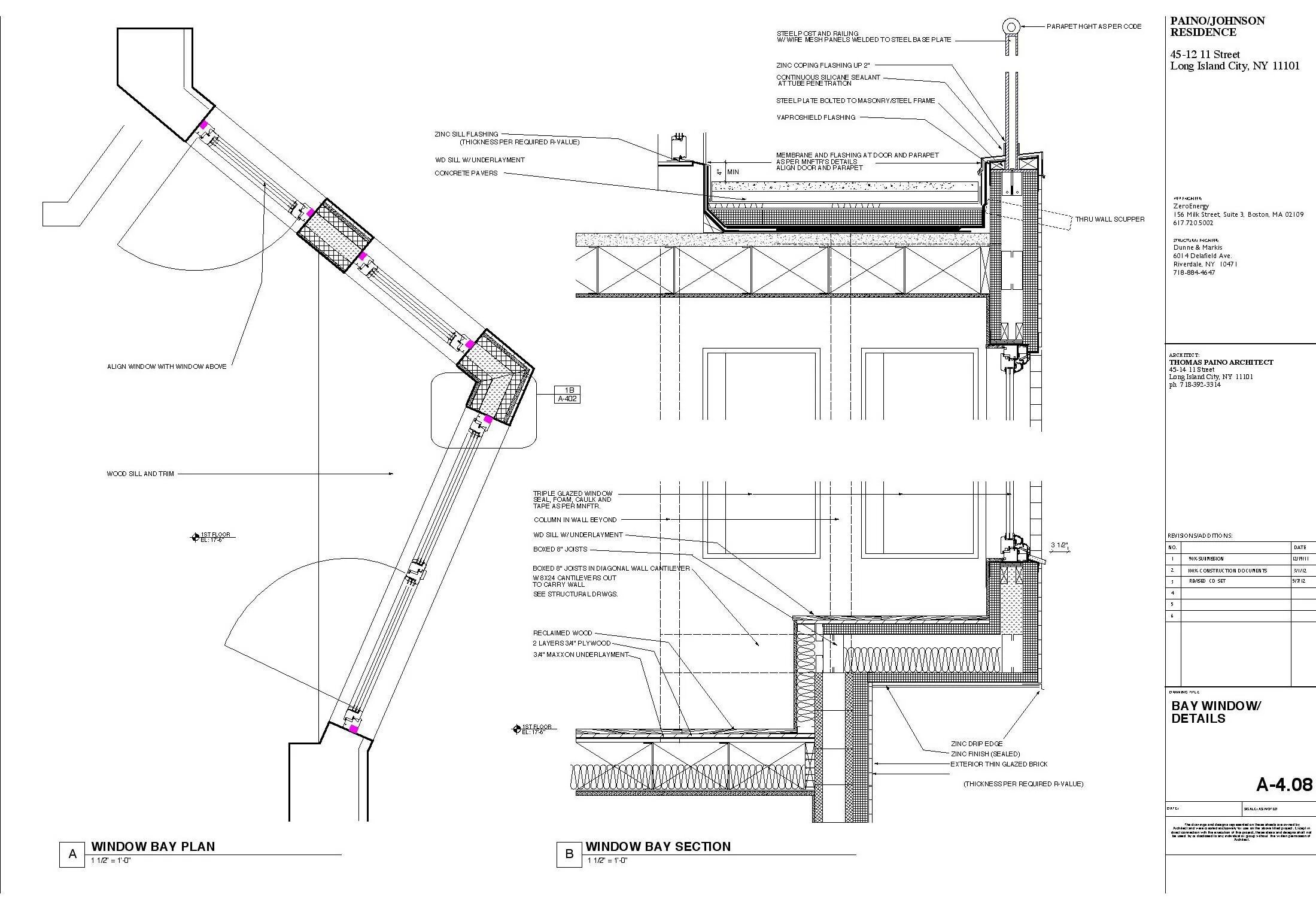
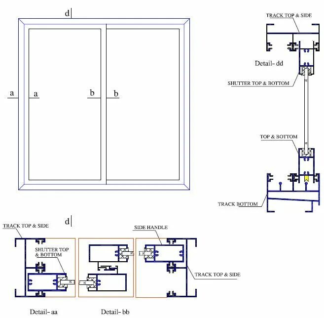
Detail windows