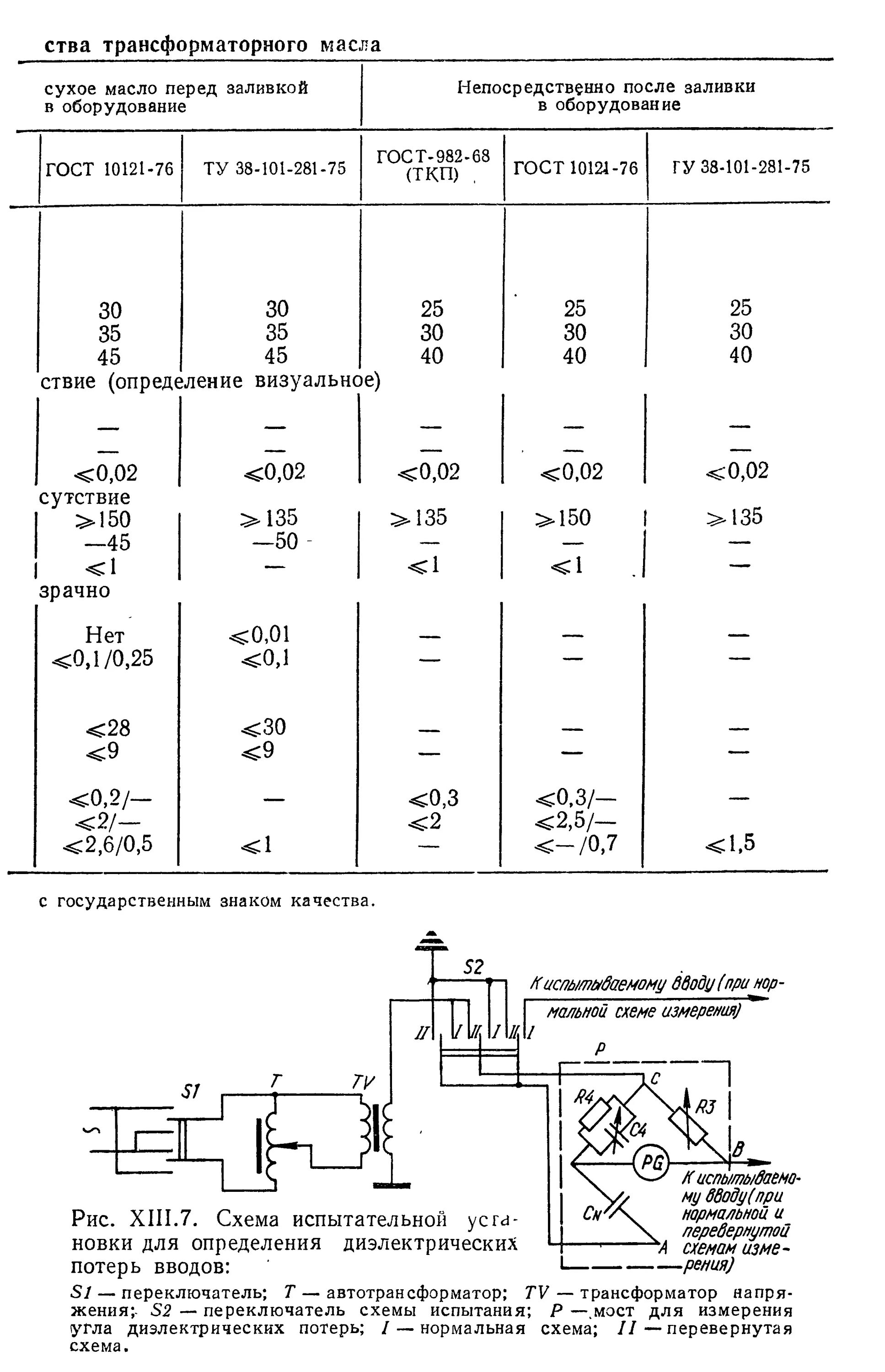
Давление масла в трансформаторах