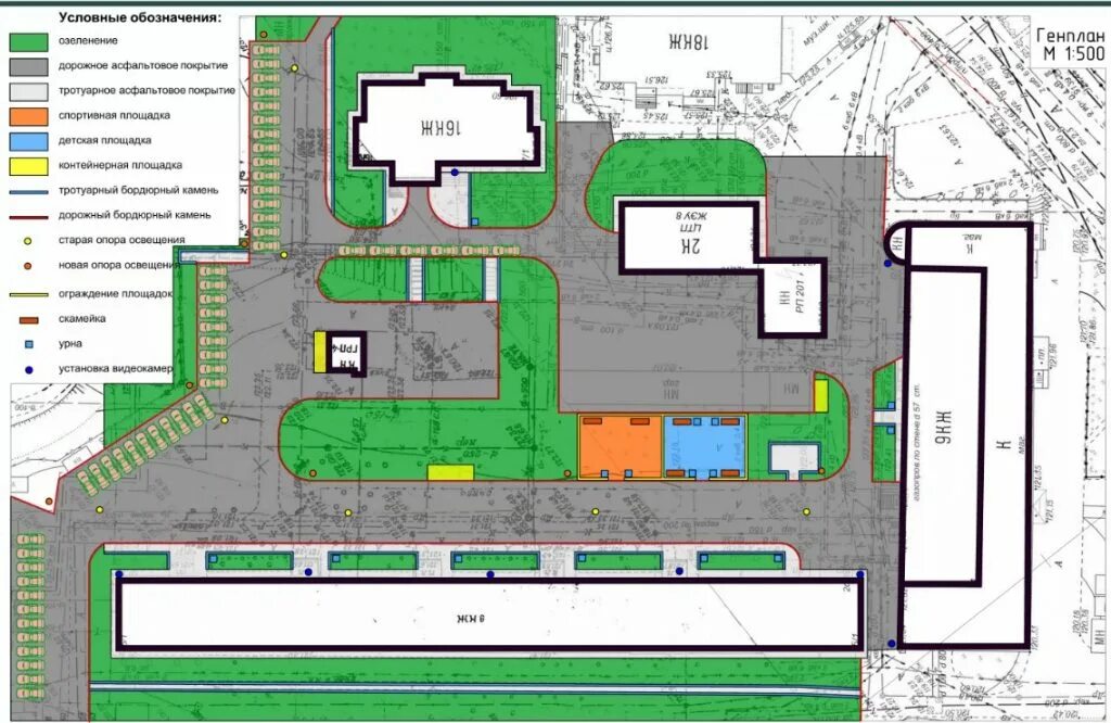
Что входит в придомовую территорию