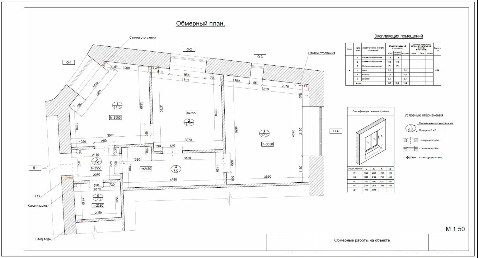
Что обязательно должно быть в плане