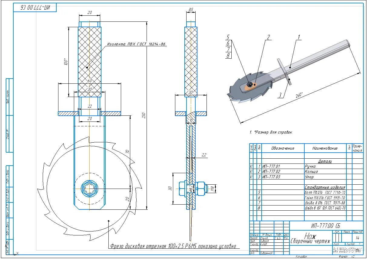
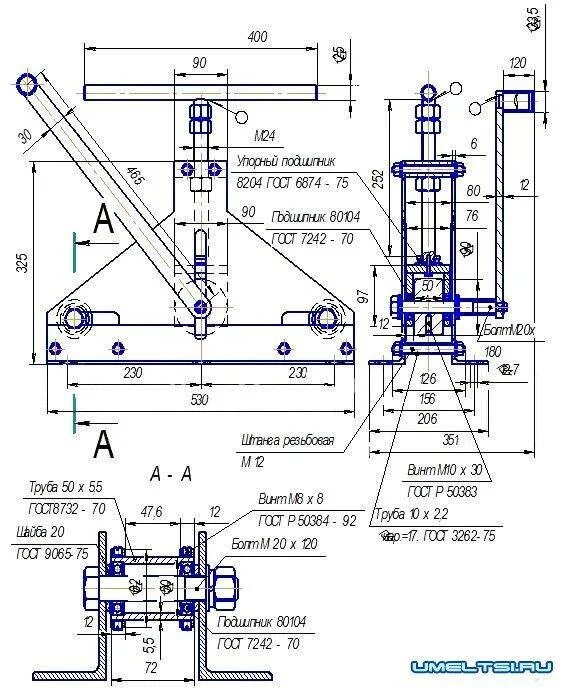
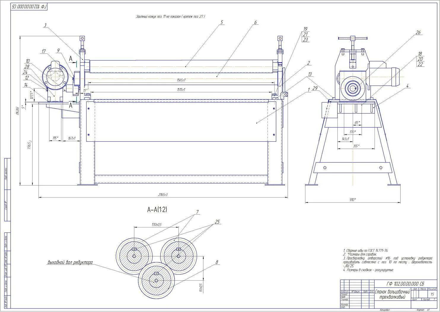
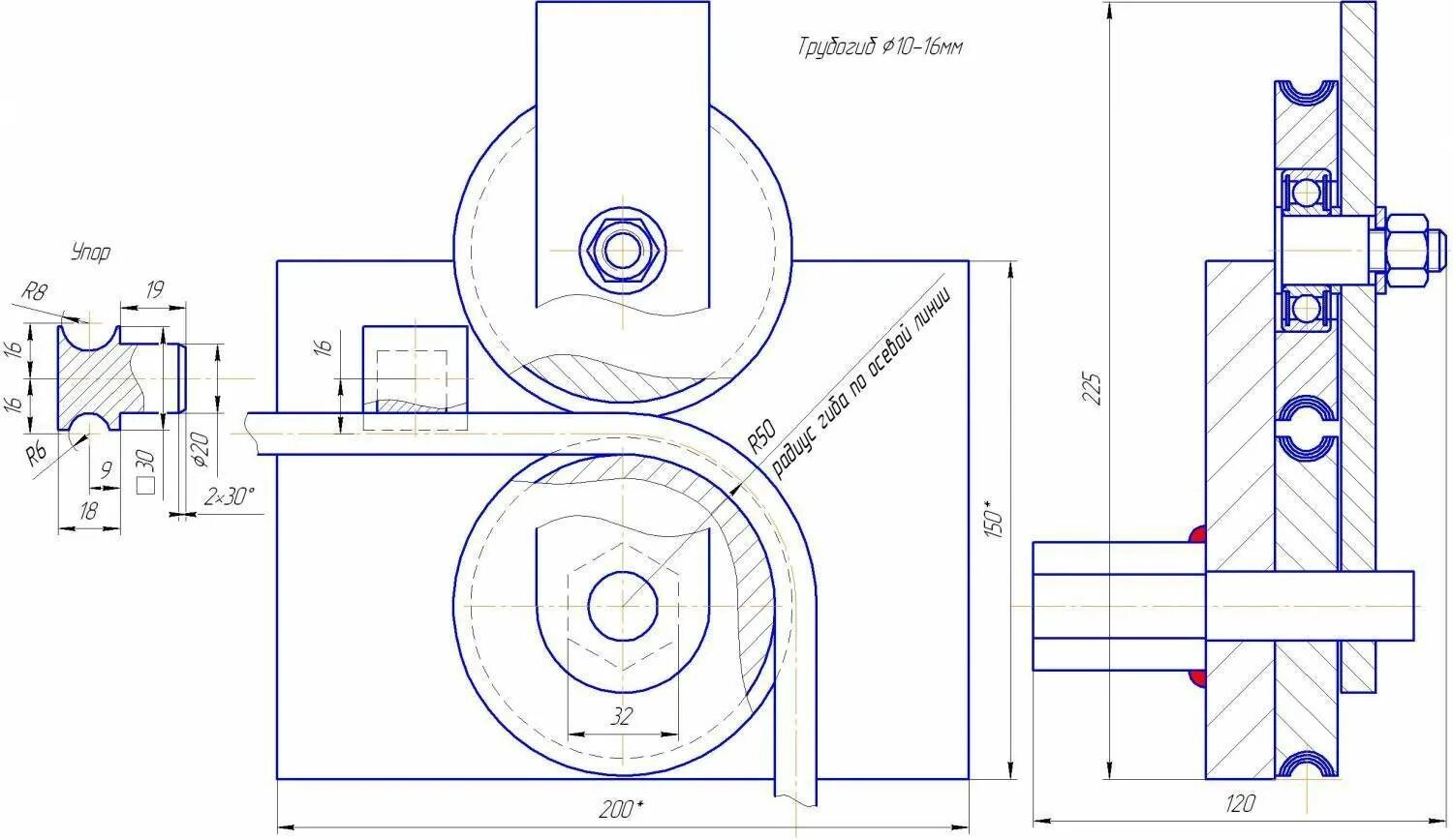
Чертежи вручную