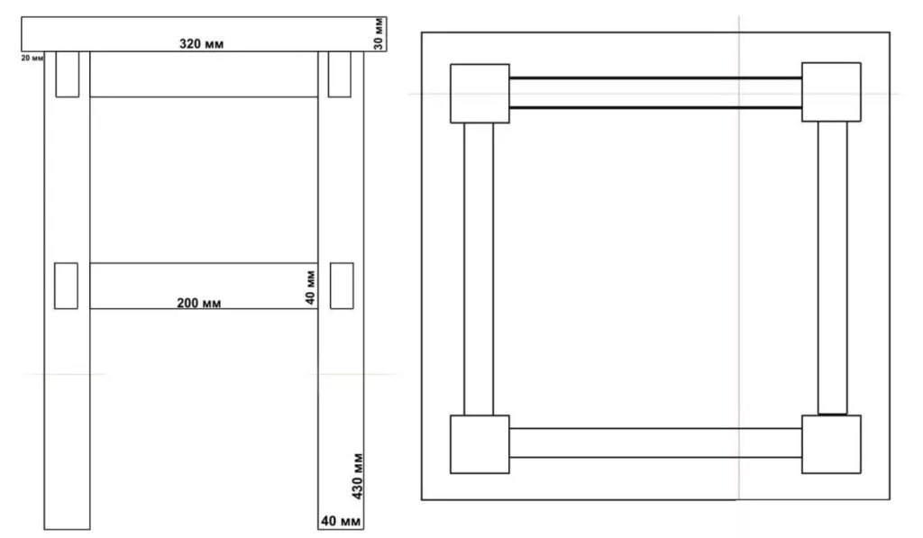
Чертежи табурета из дерева