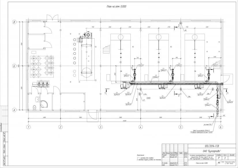
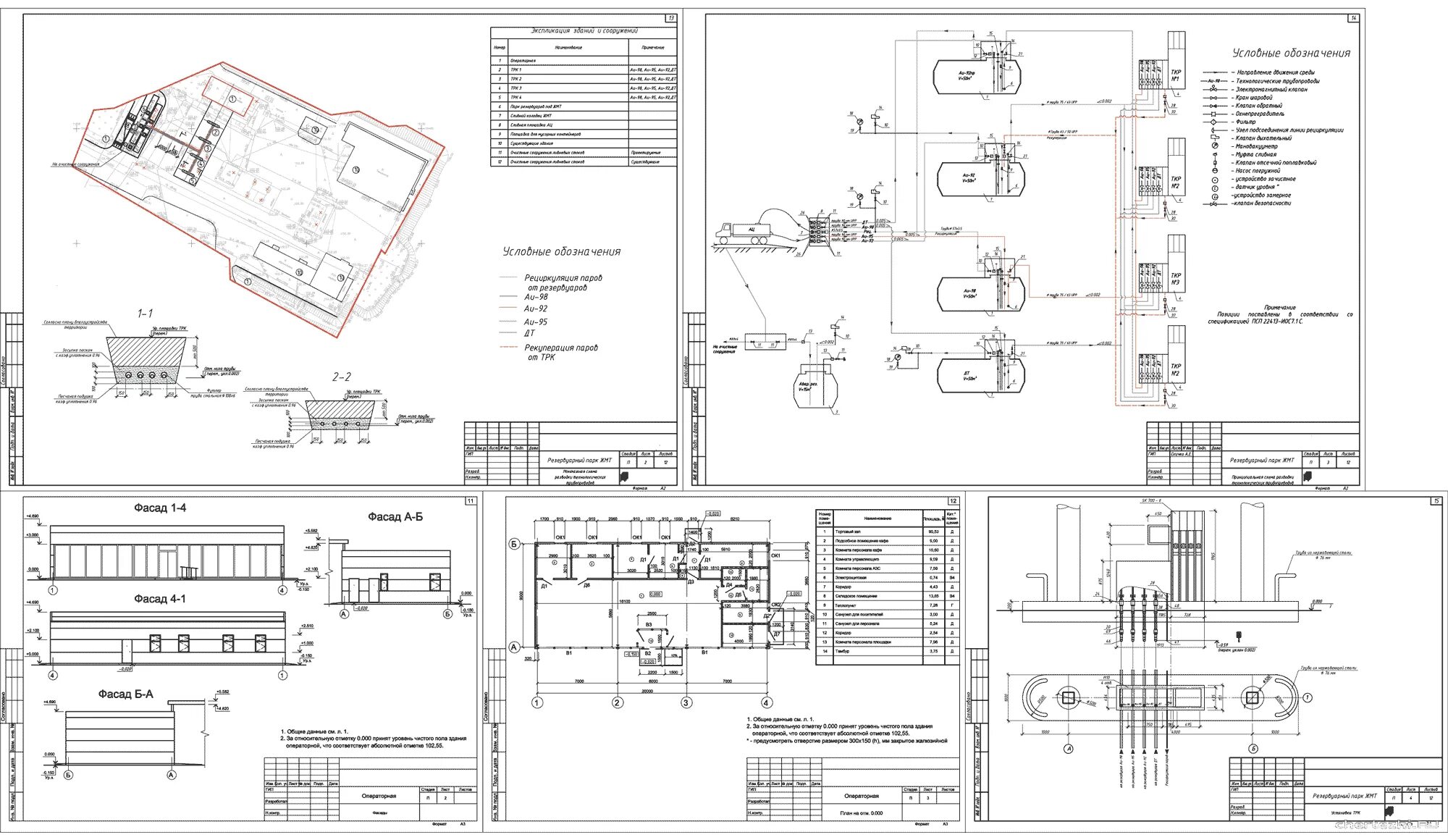
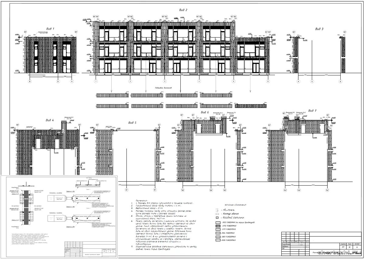
Чертежи стадия п