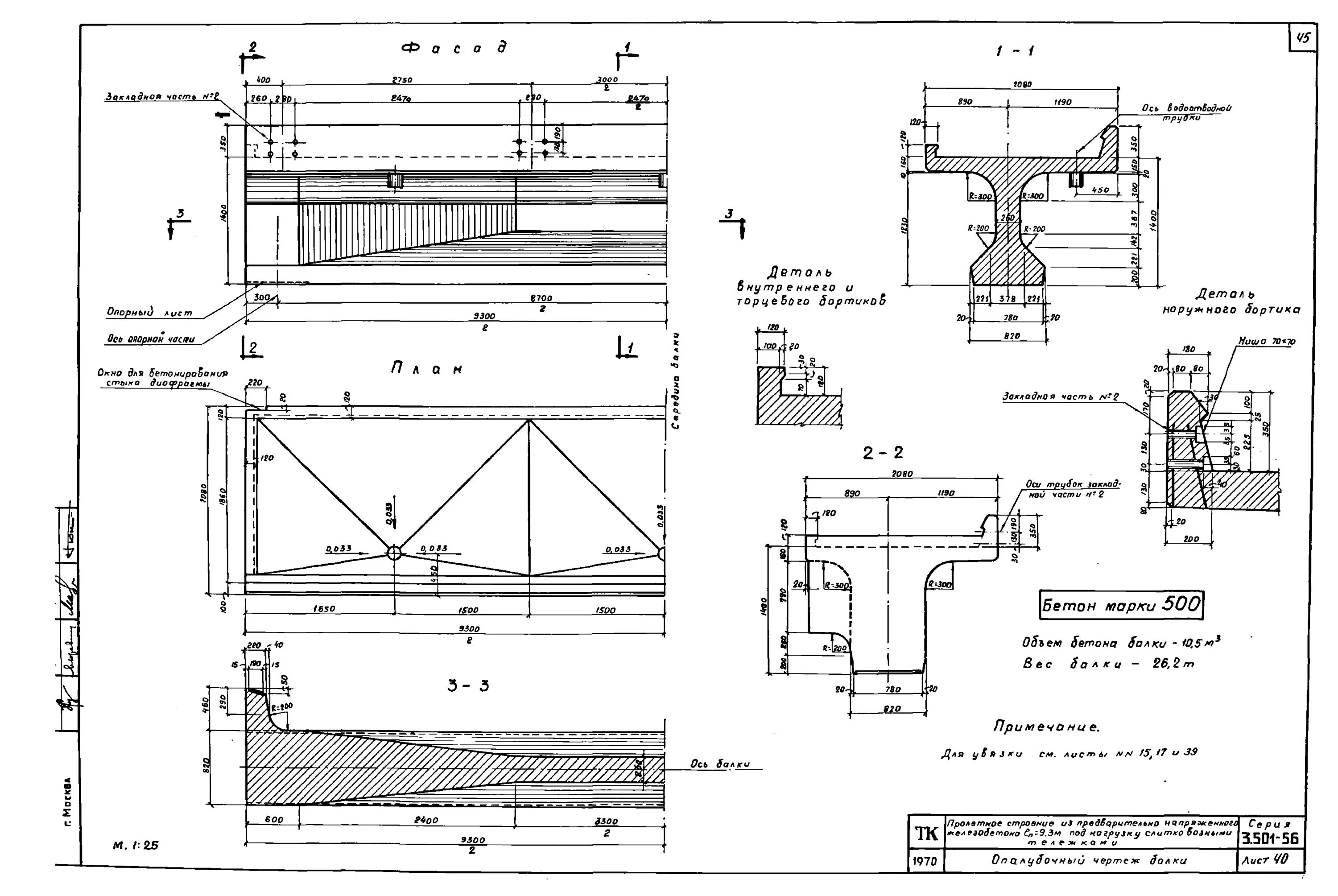
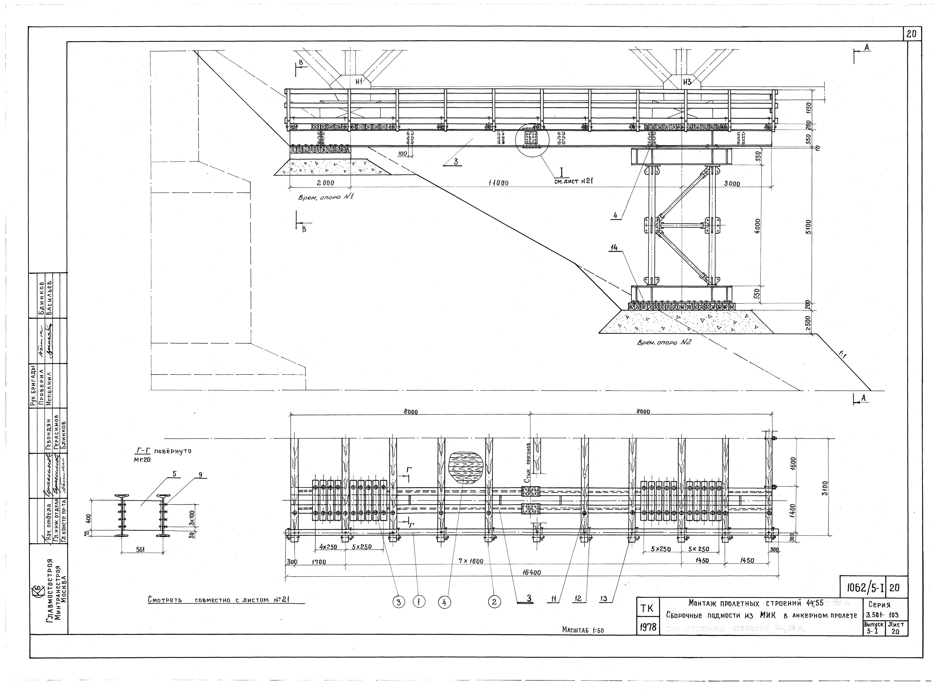
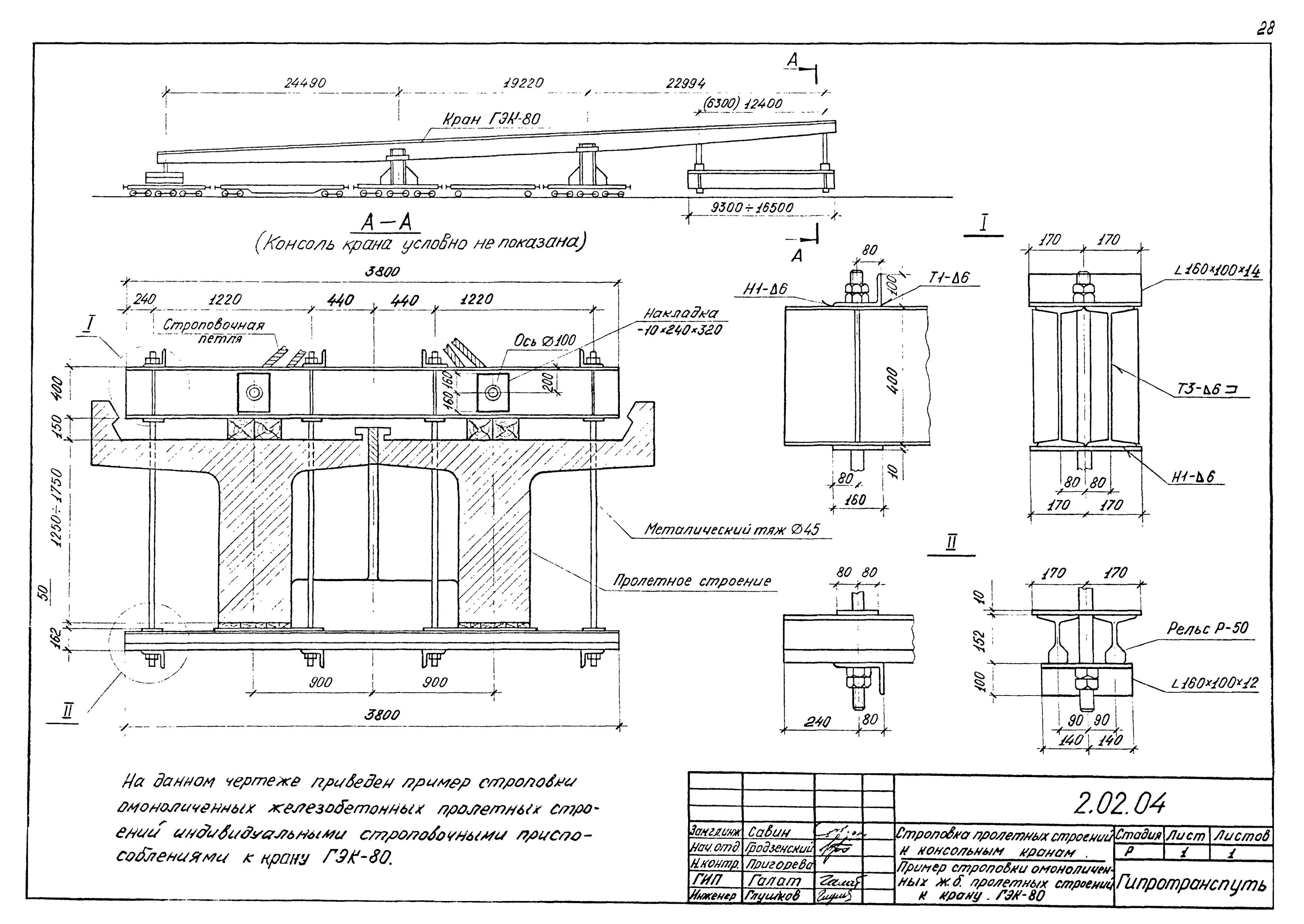
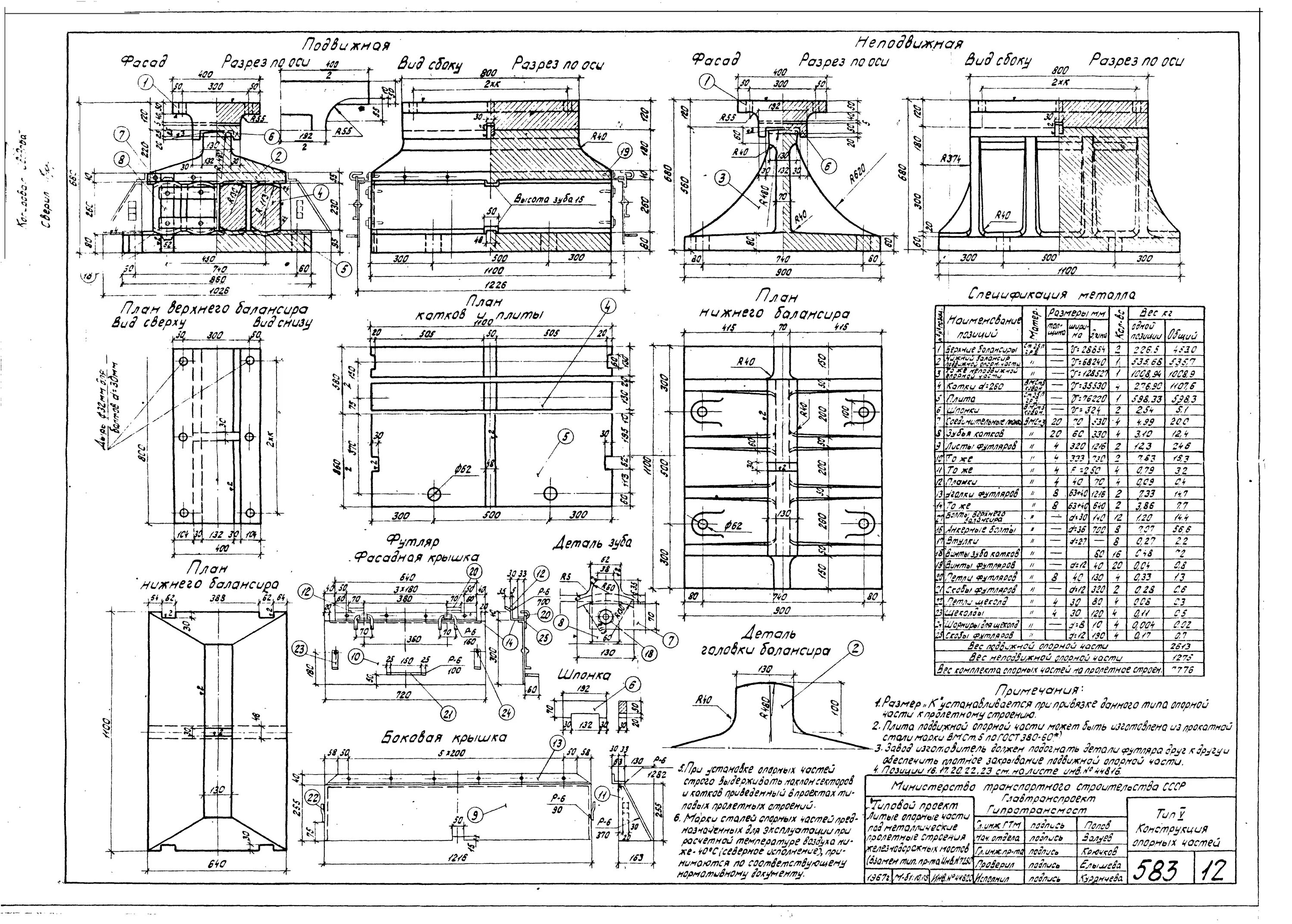
Чертежи пролетных строений