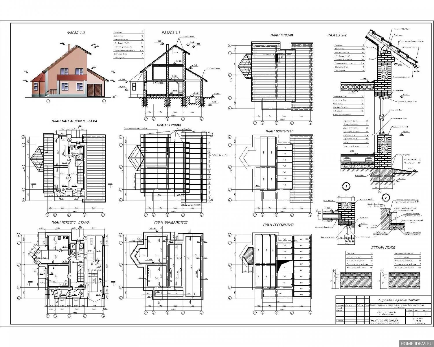
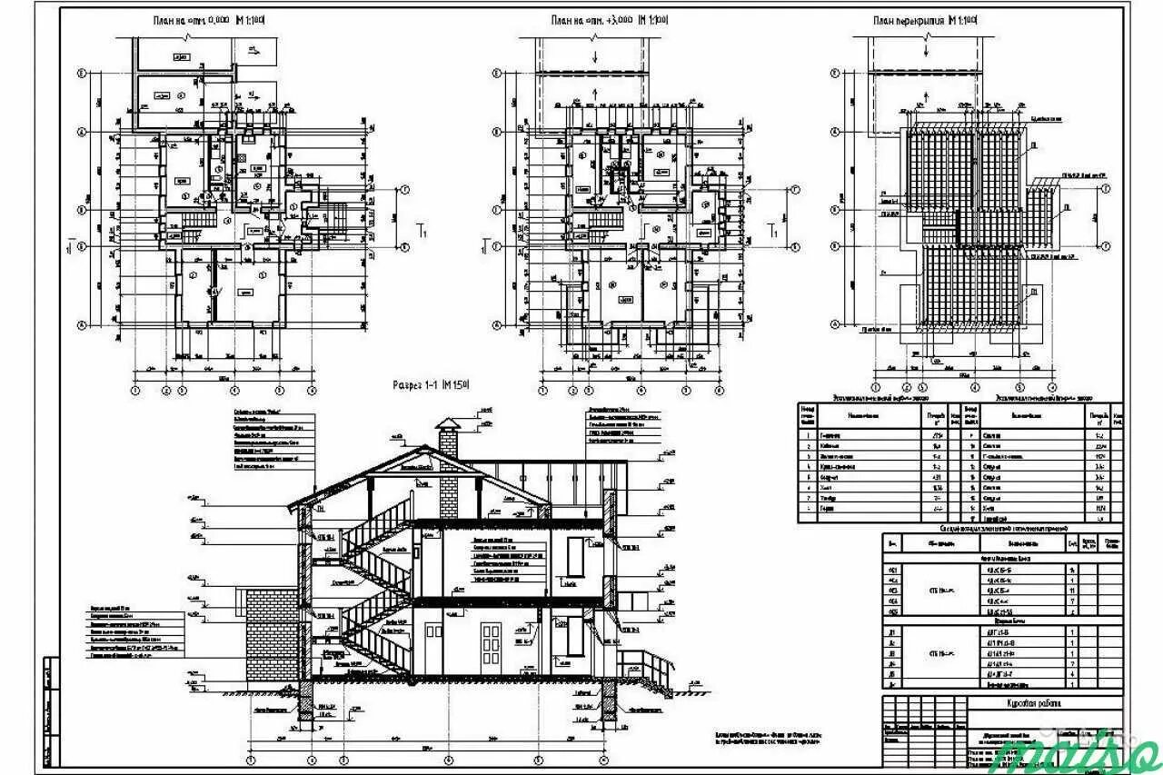
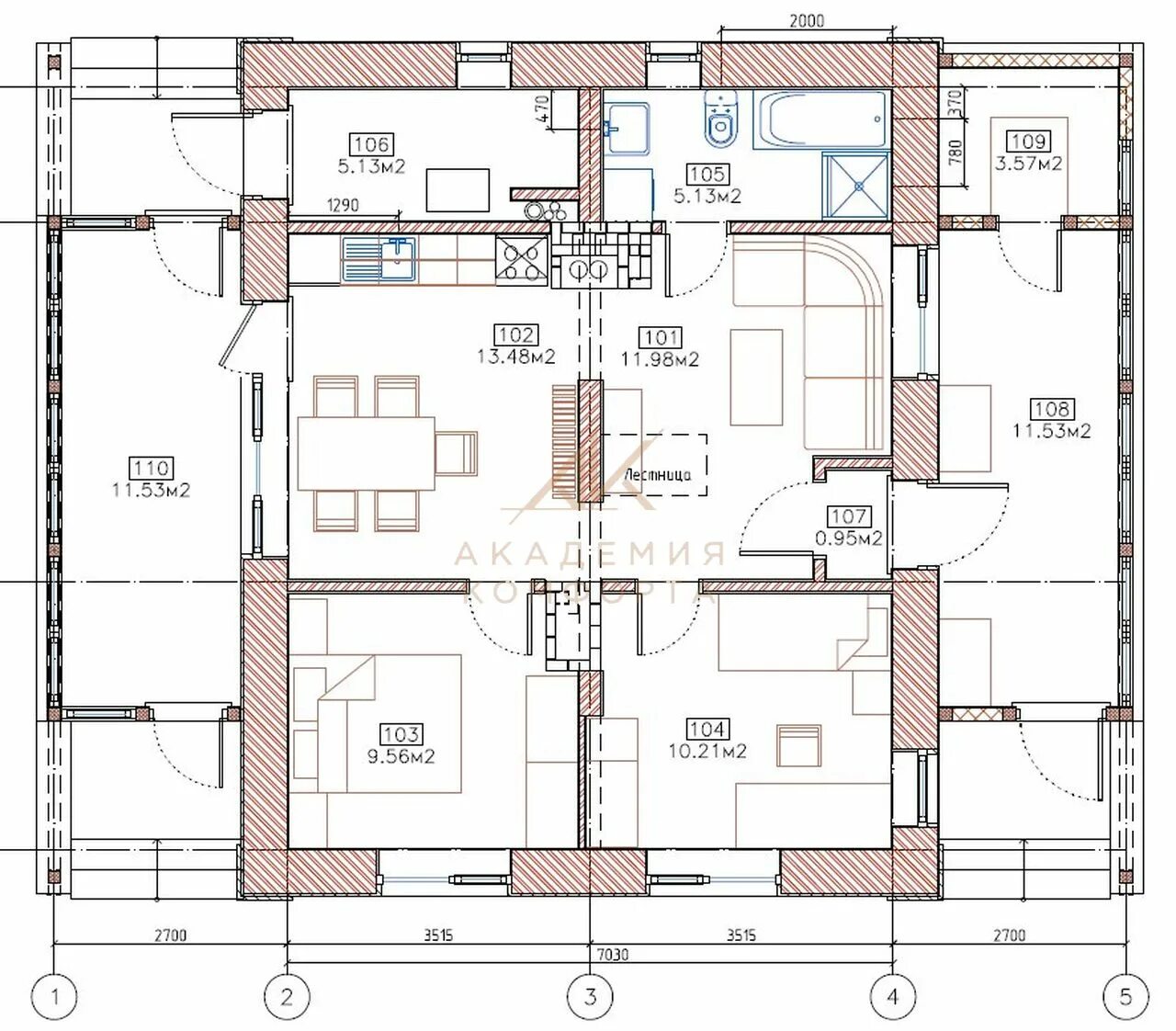
Чертежи кирпичного дома