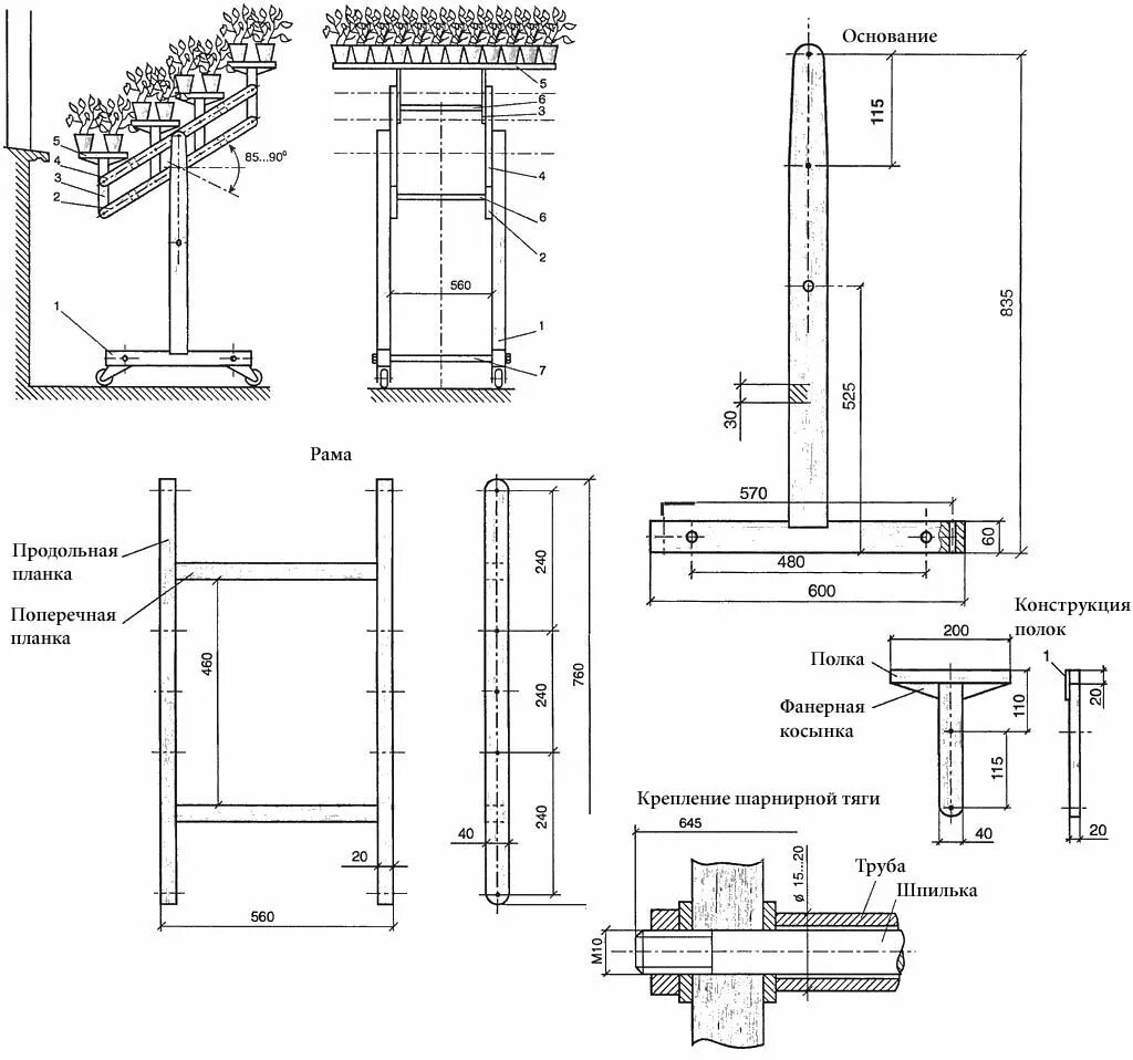
Чертежи из дерева для цветов