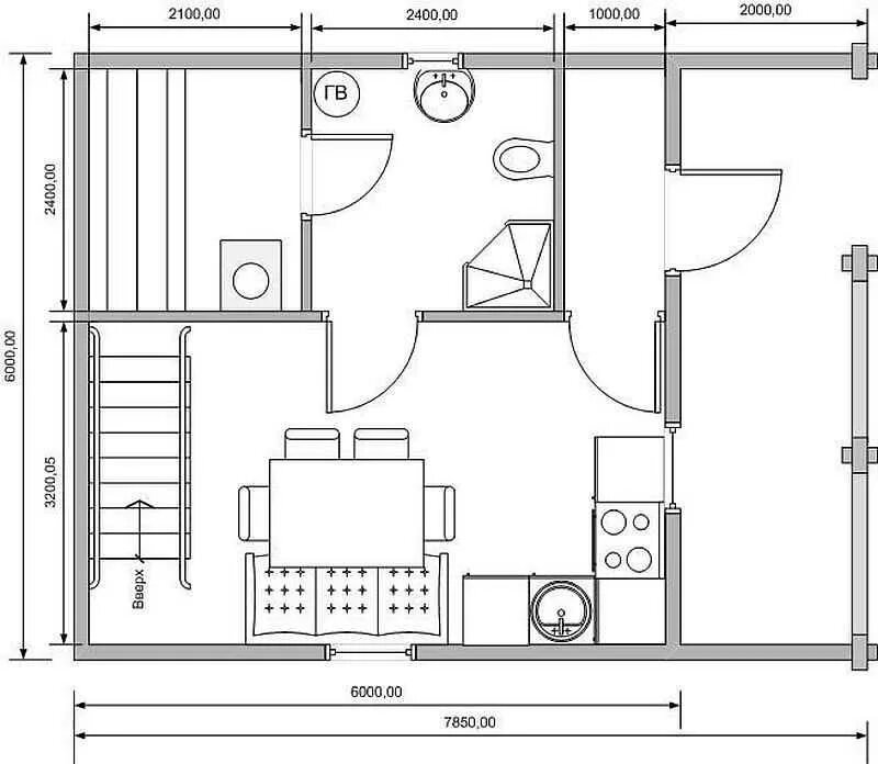
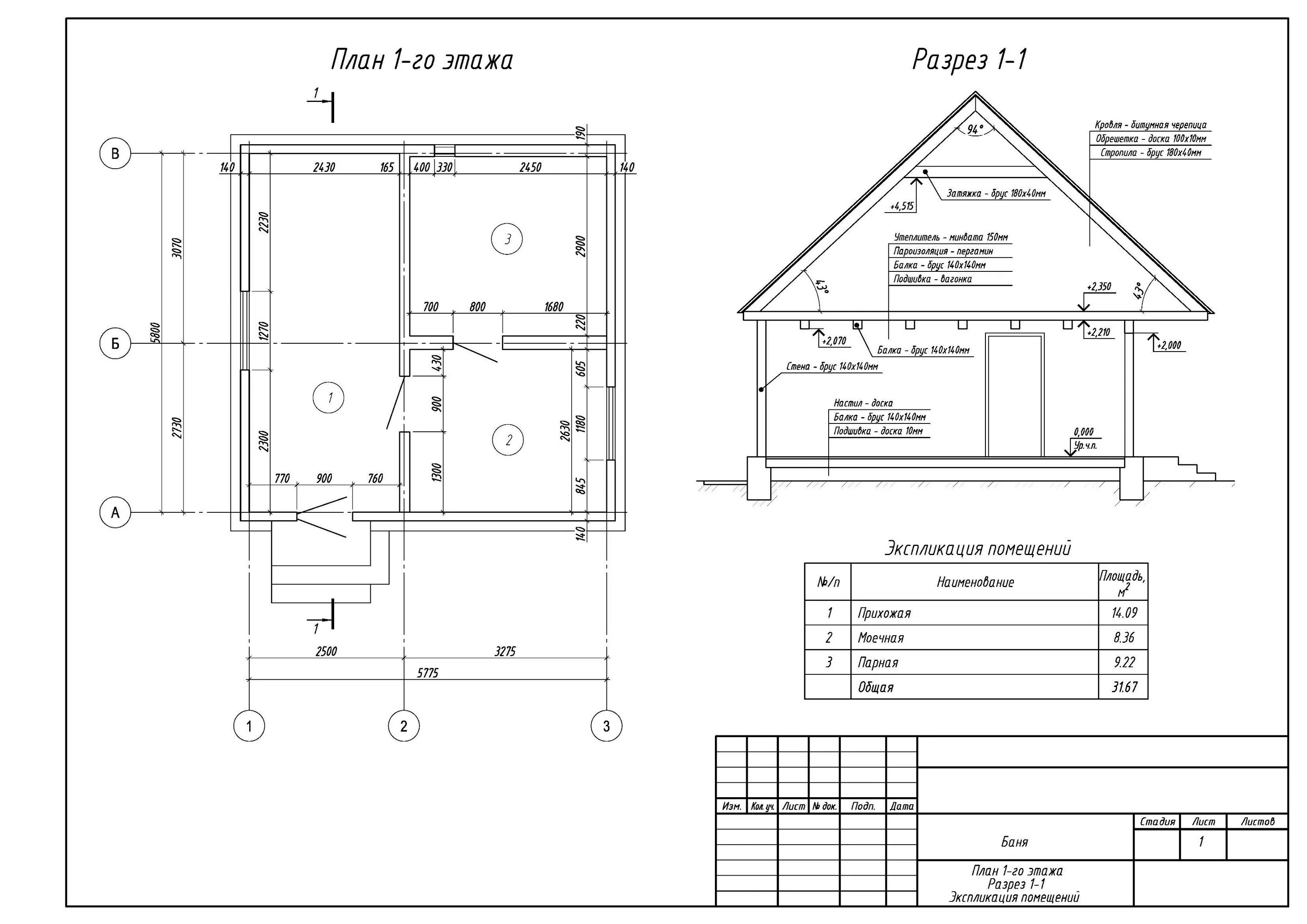
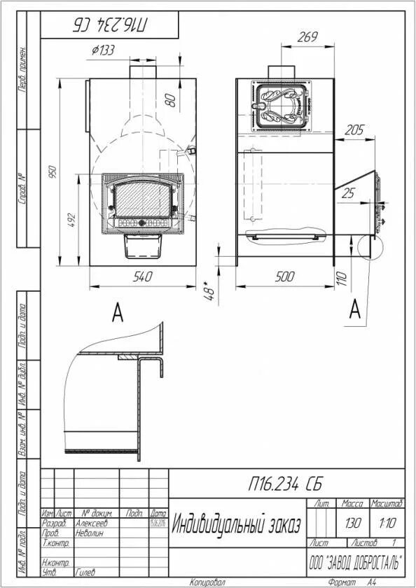
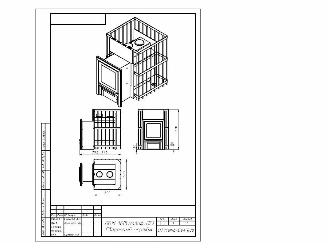
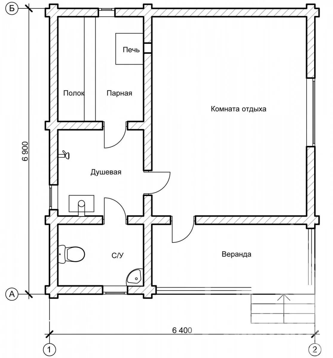
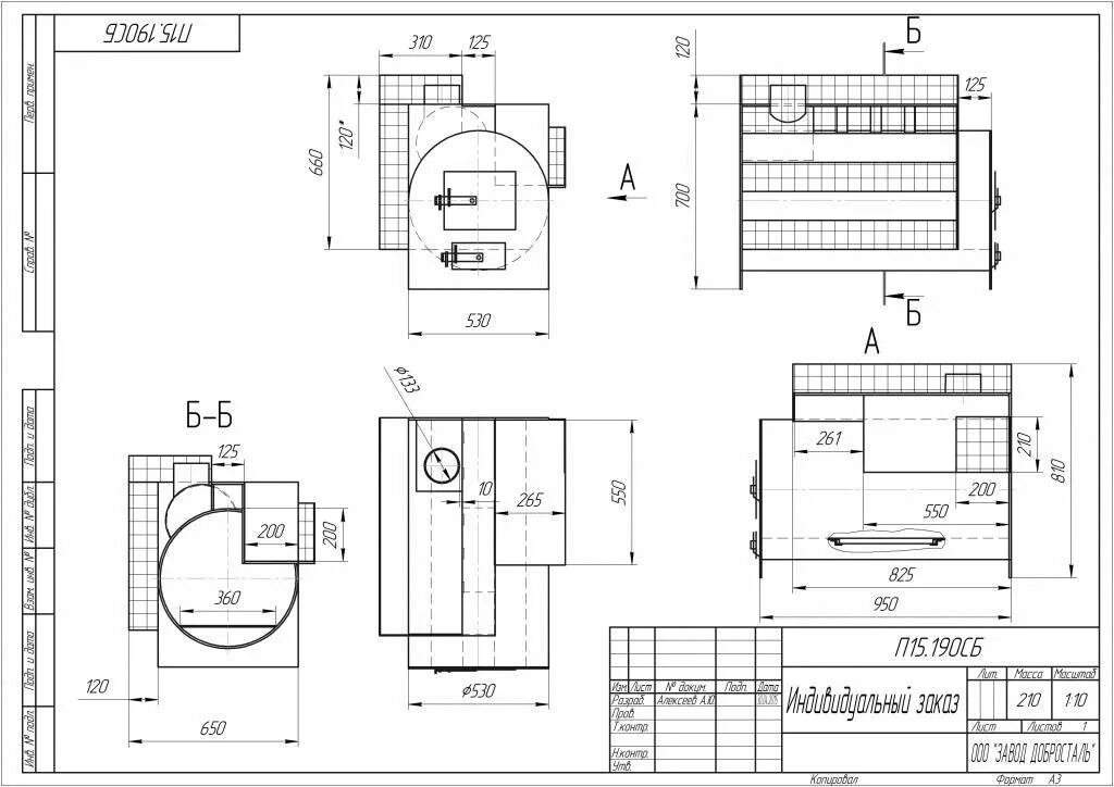
Чертежи банных