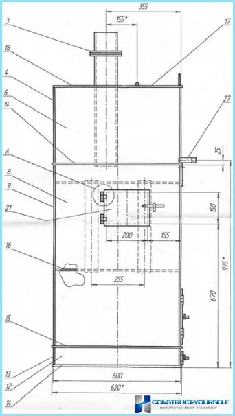
Чертежи банной печи из трубы 530