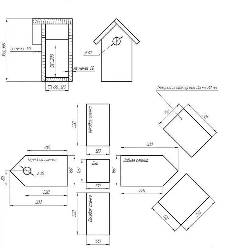
Чертеж синичника с размерами из дерева