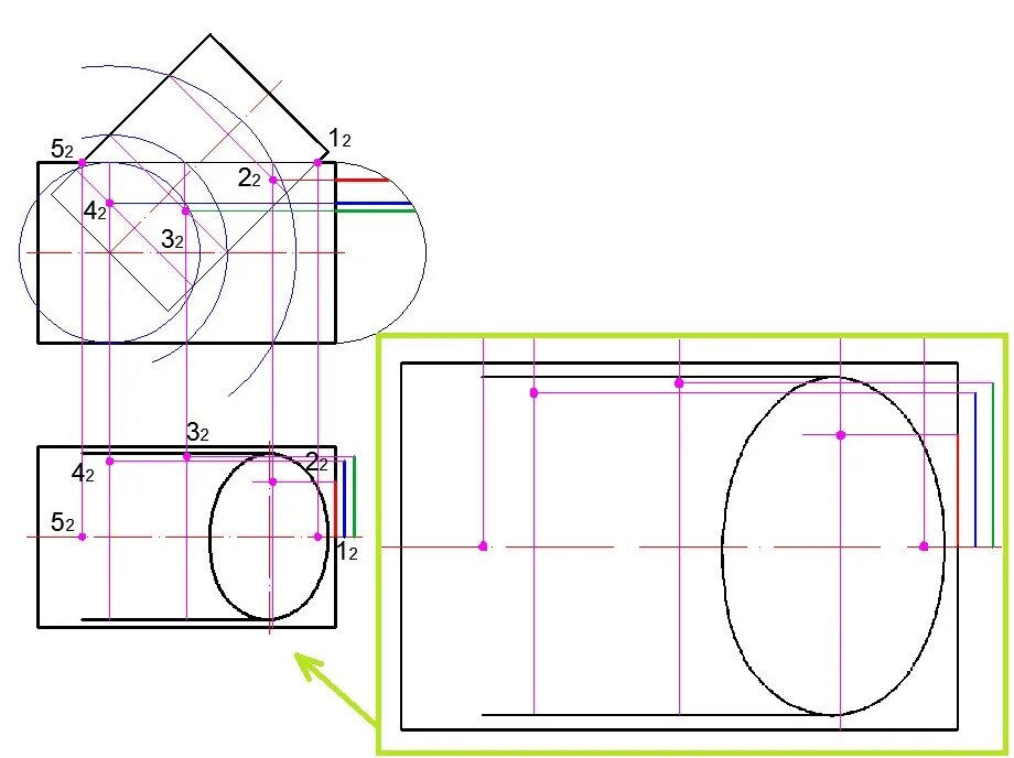
Чертеж пересечения цилиндров