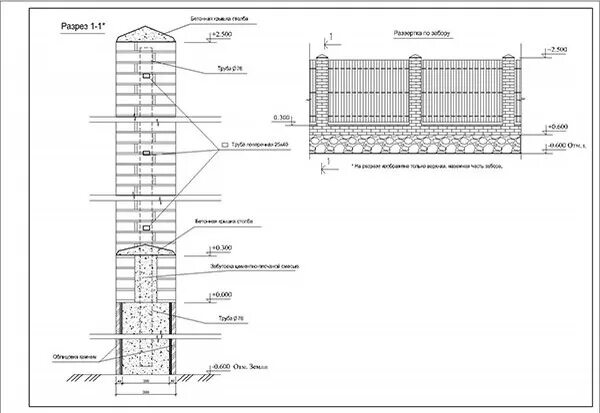
Чертеж кирпичного столба