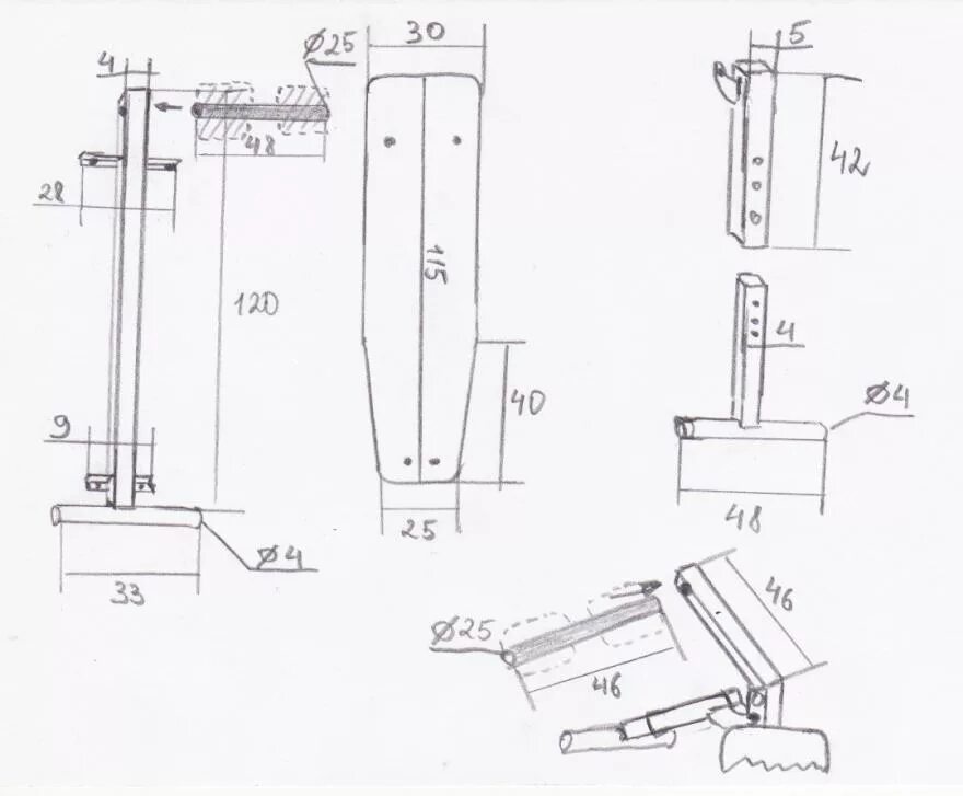
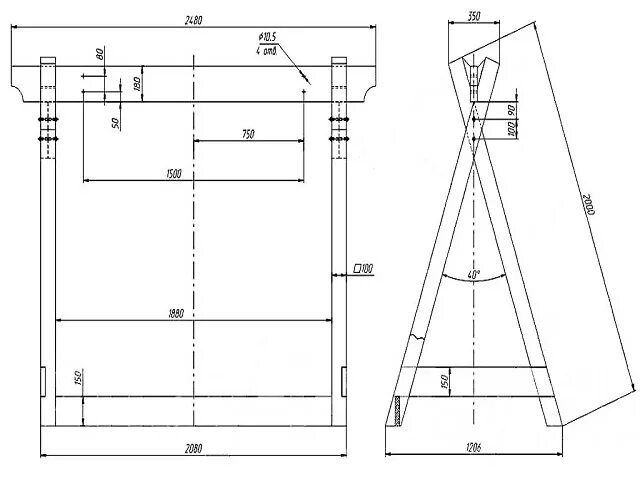
Чертеж инверсионного стола