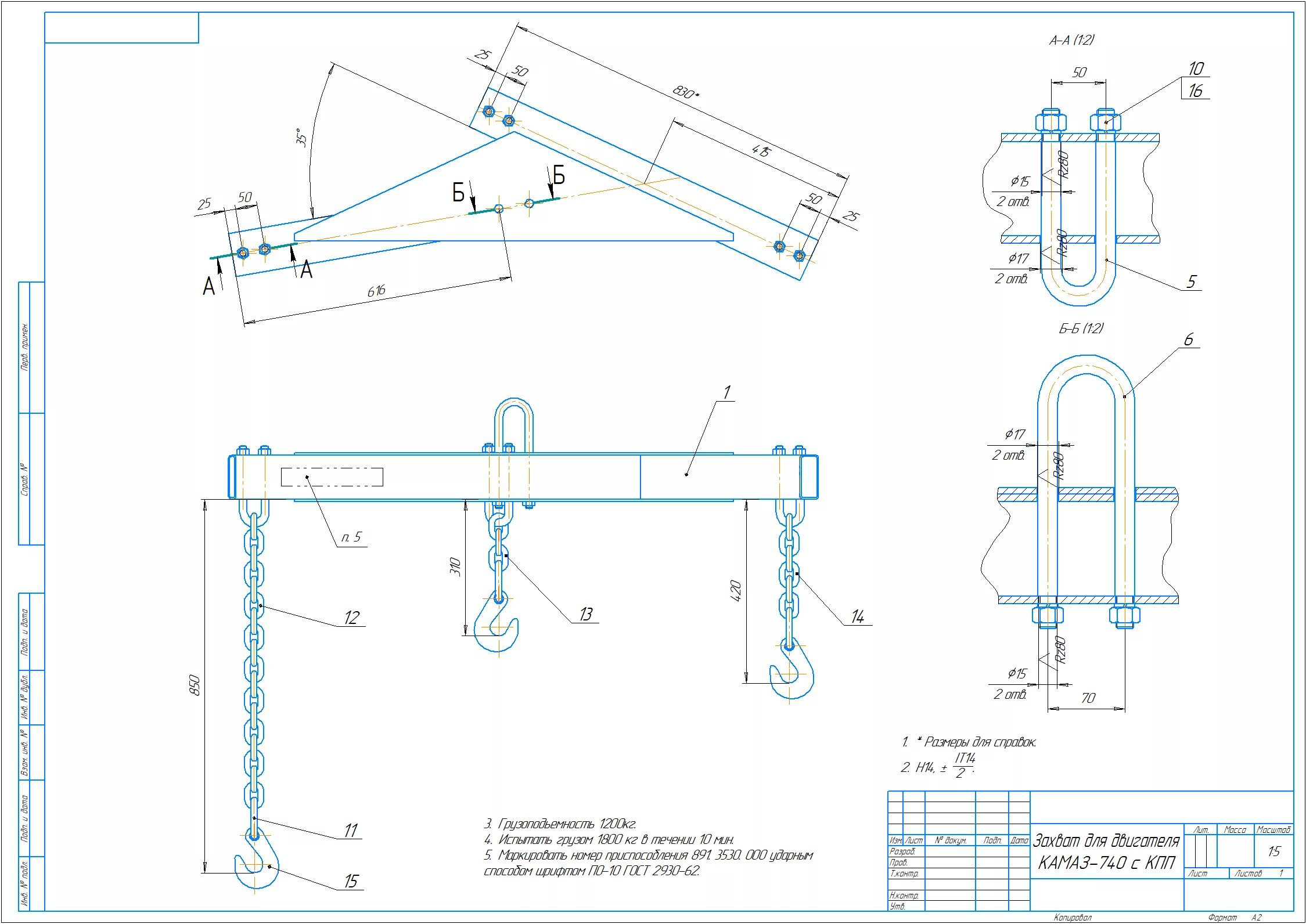
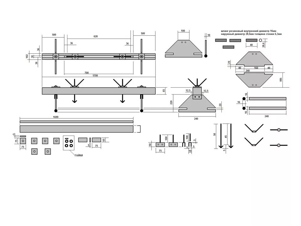
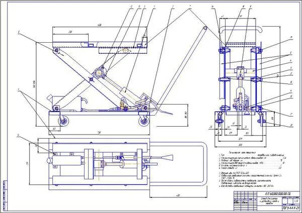
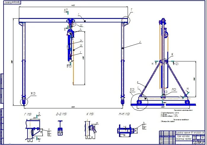
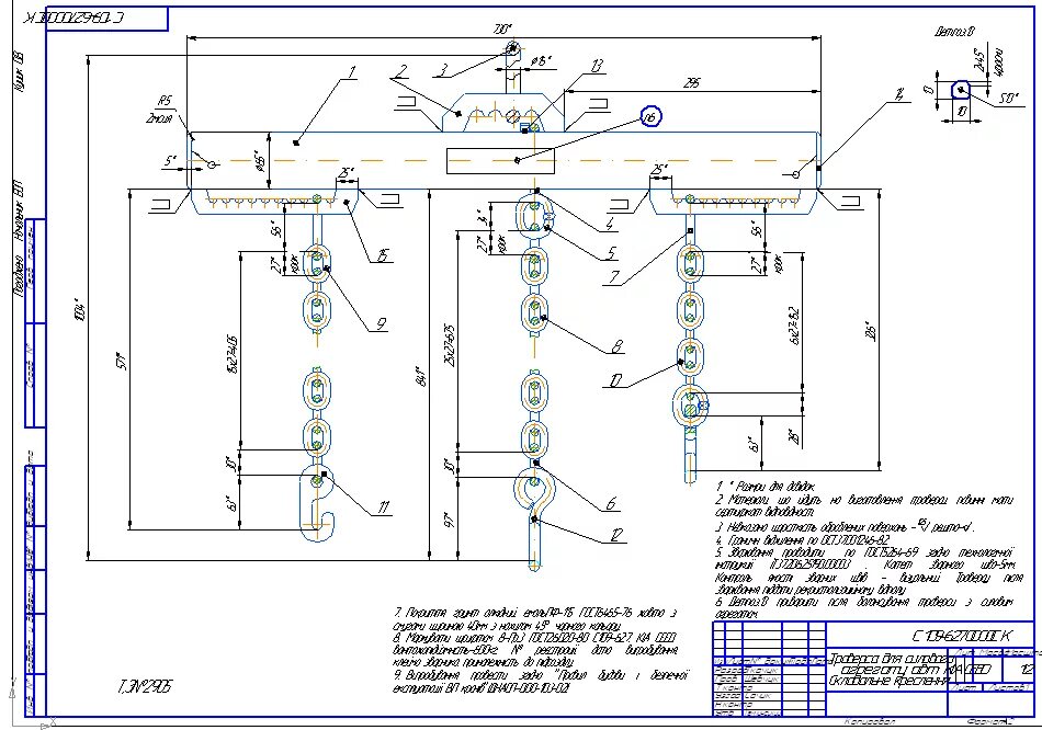
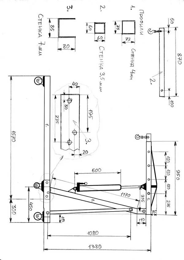
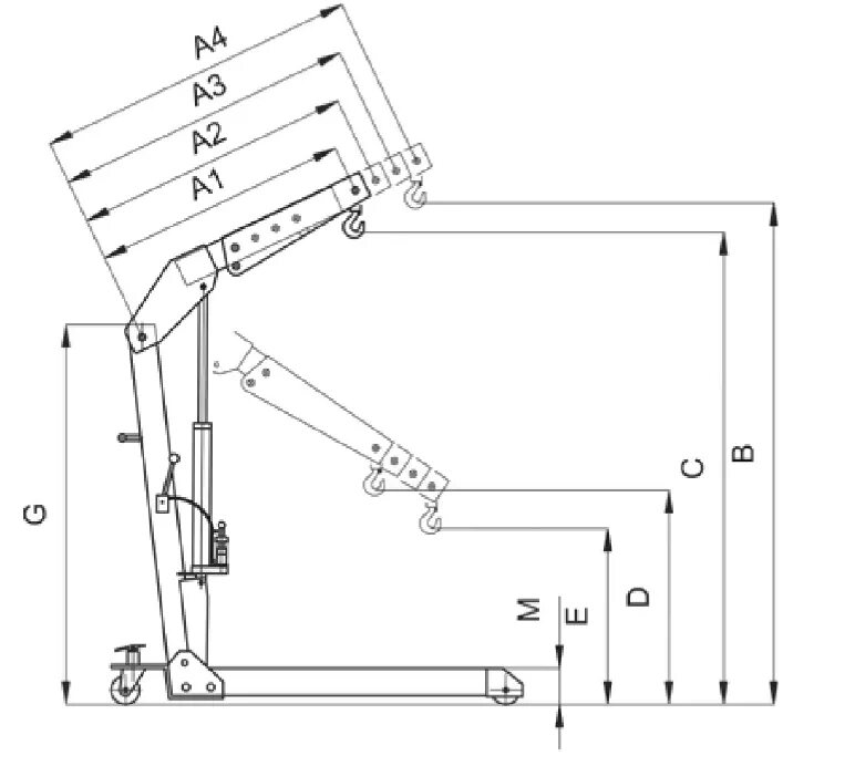
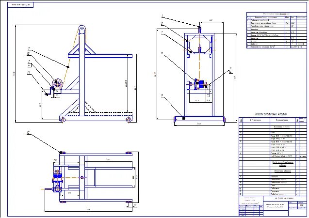
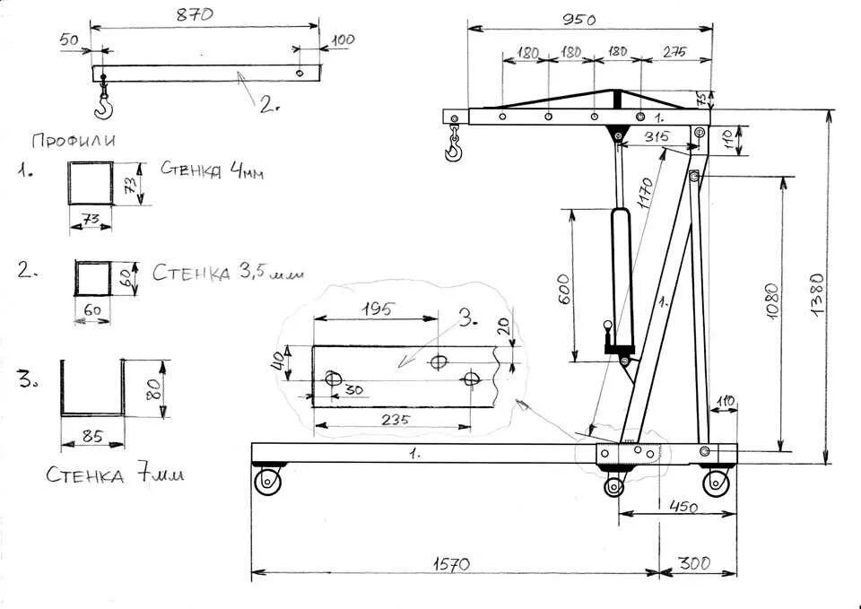
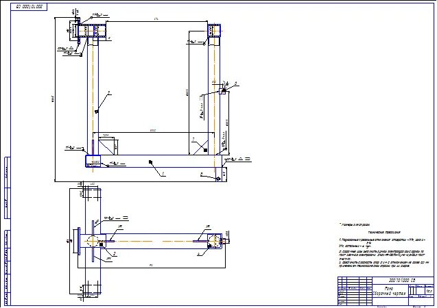
Чертеж для снятия двигателя