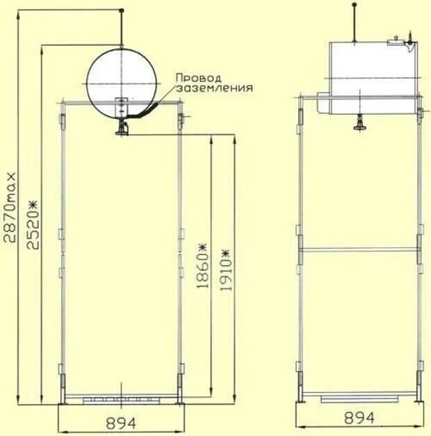
Чертеж дачного душа своими руками