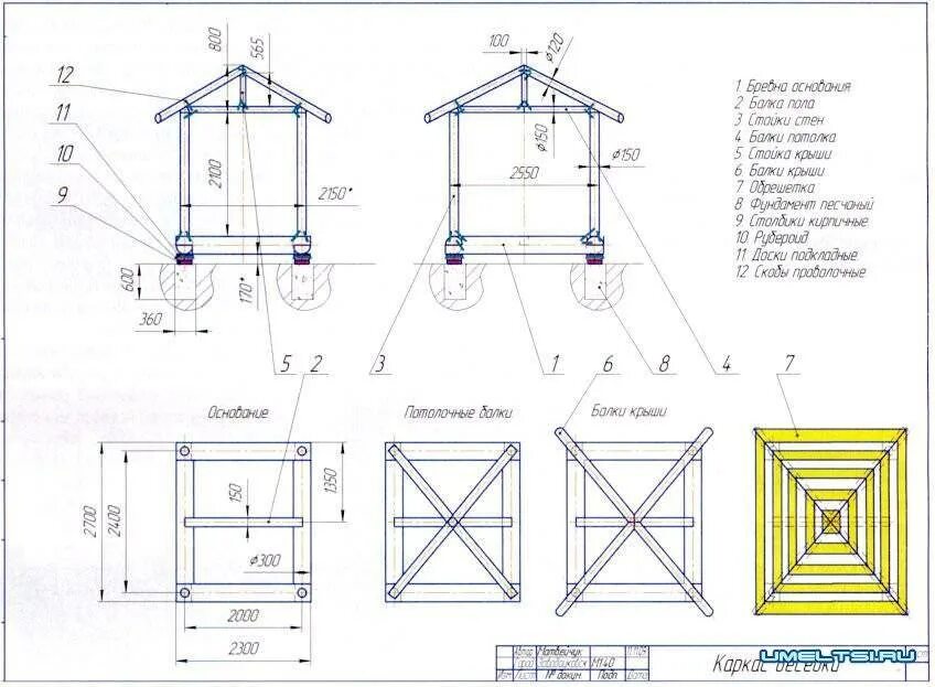
Чертеж дачного дома своими руками