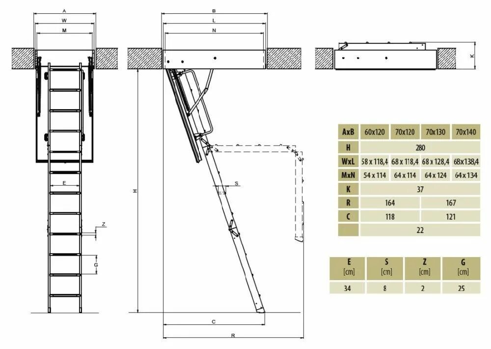
Чердачная лестница с люком размеры