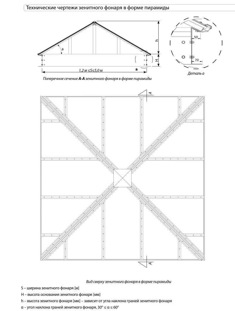
Чему равна диагональ основания зенитного фонаря