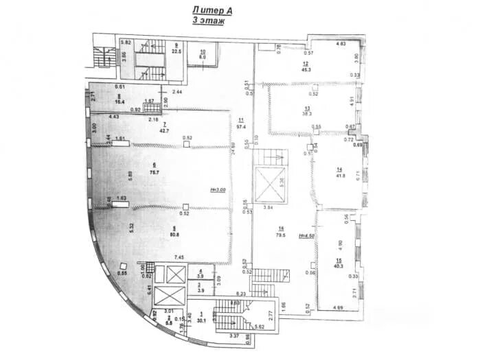
Бц славянский