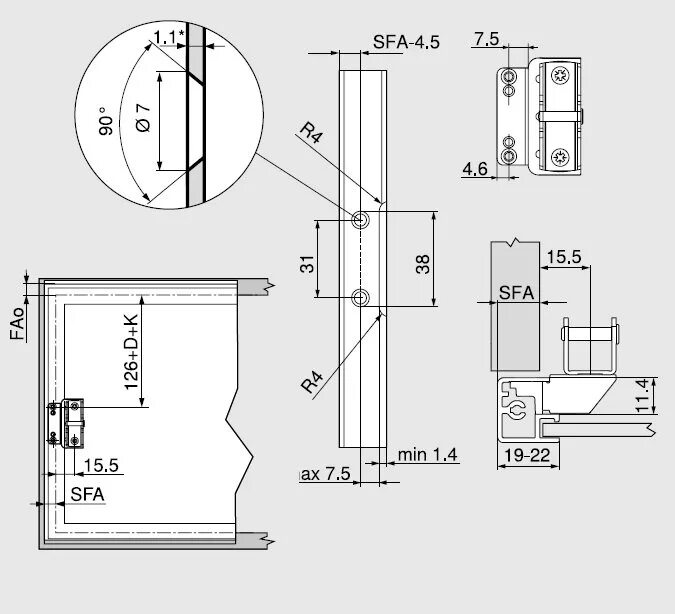
Blum схема установки