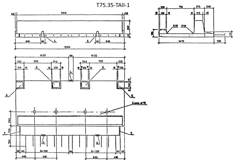
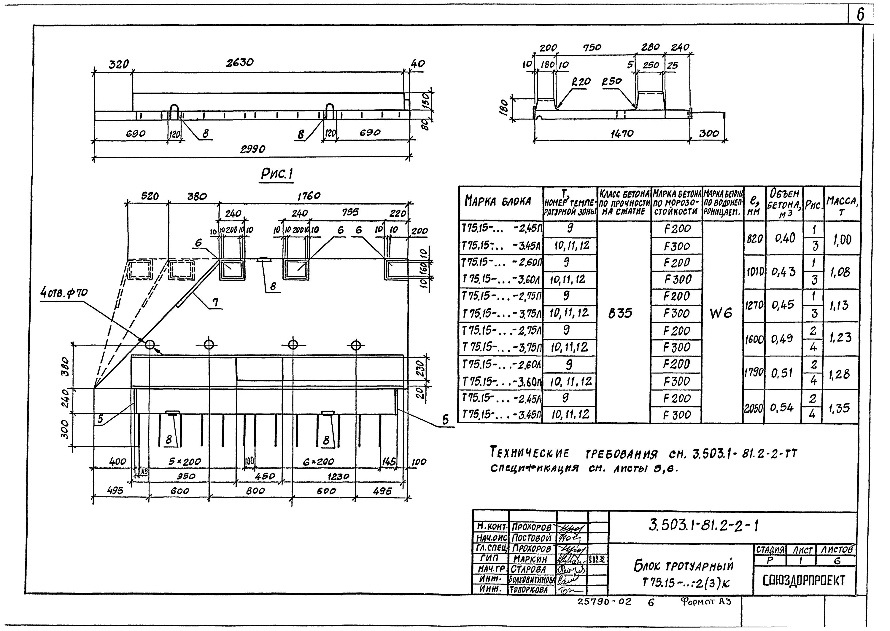
Блок т 1 1 0