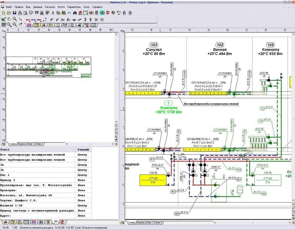
Бесплатная программа проектирования отопления