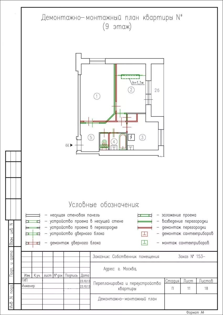
Башня вулыха перепланировка