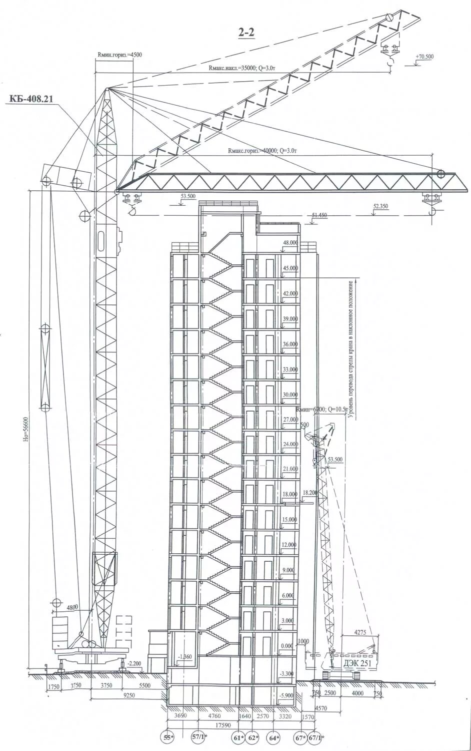
Башенный кран двг