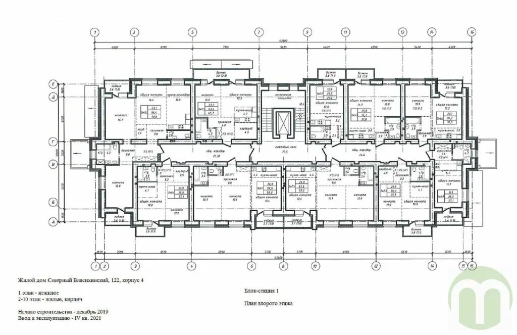
Барнаул северный власихинский проезд