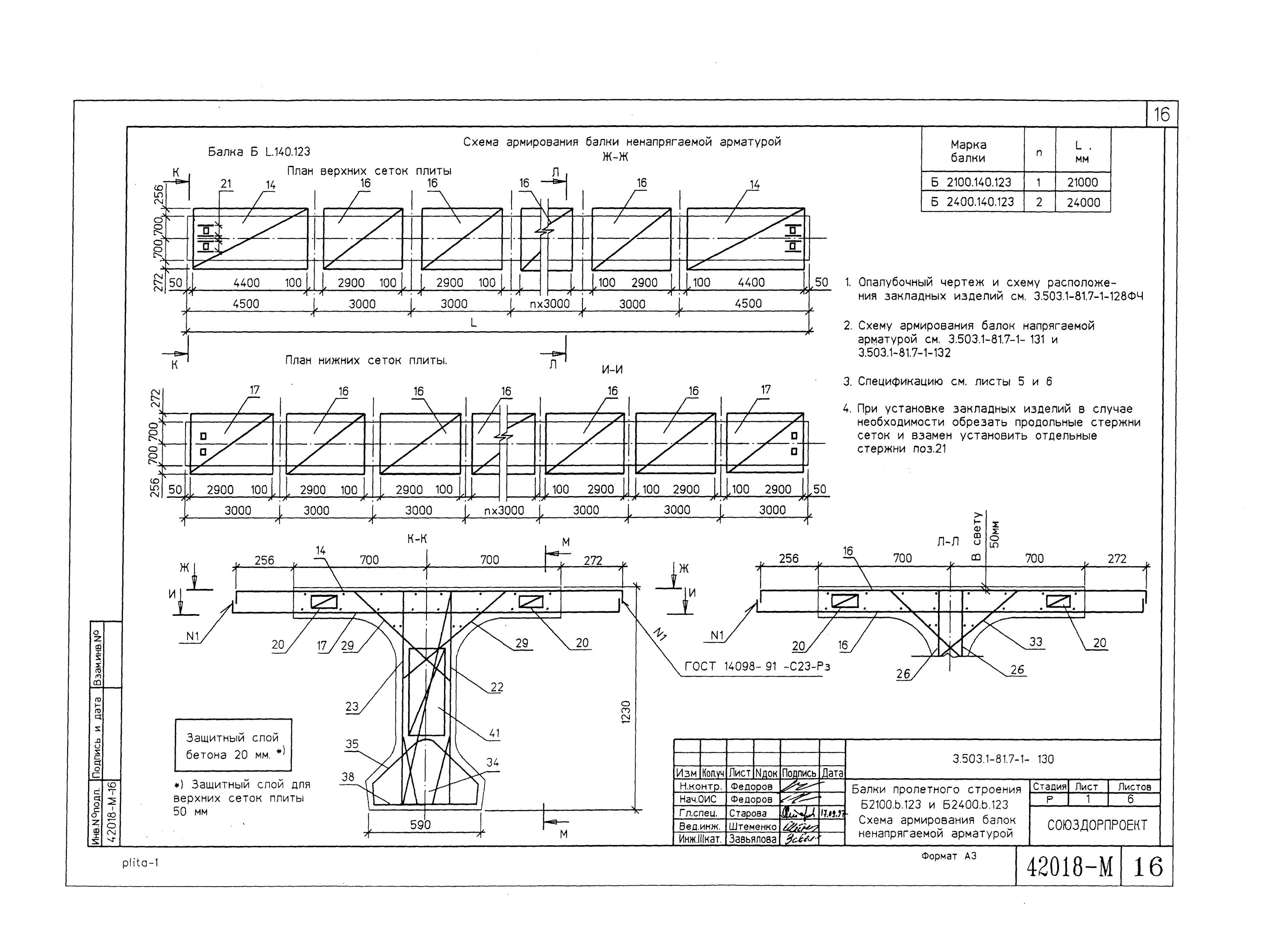
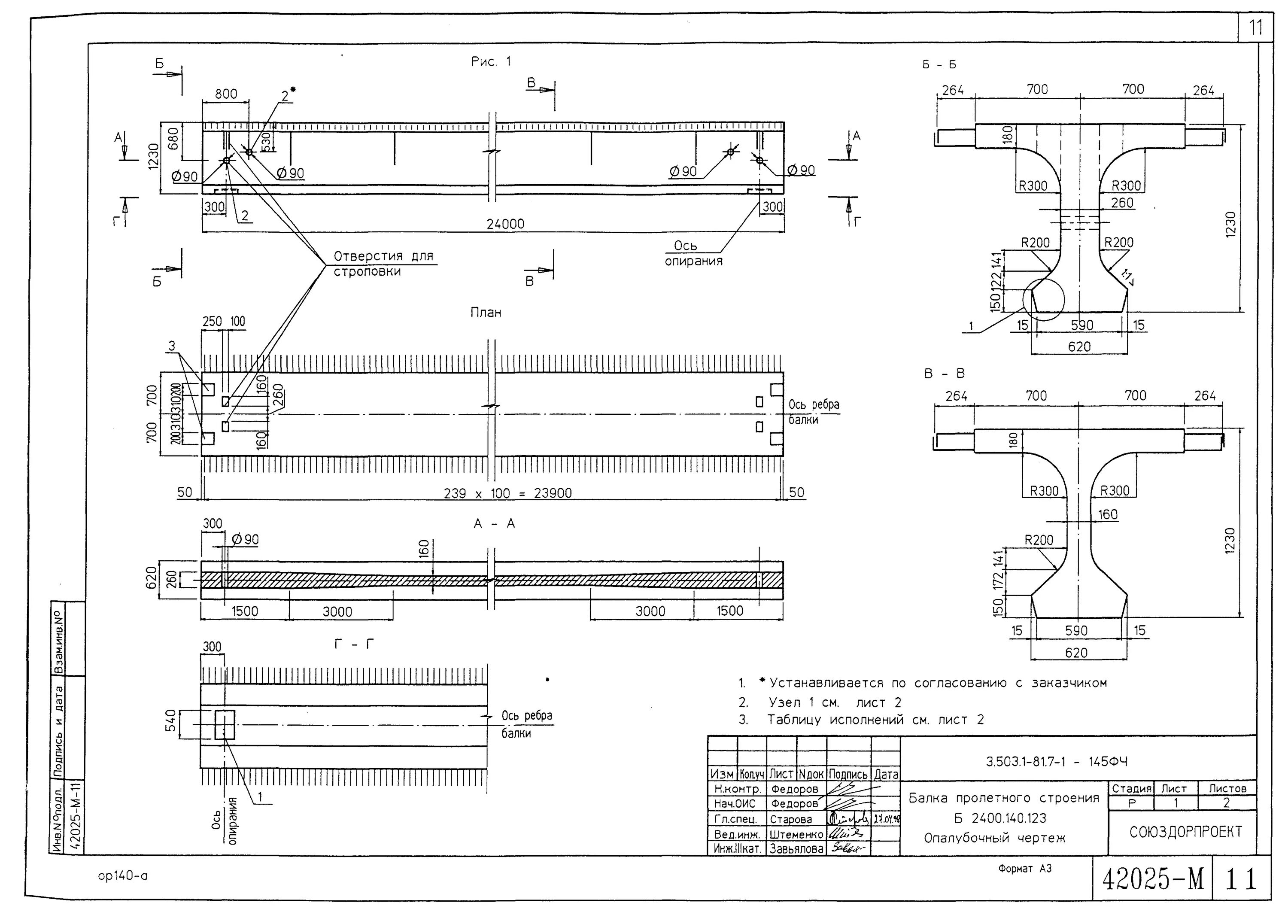
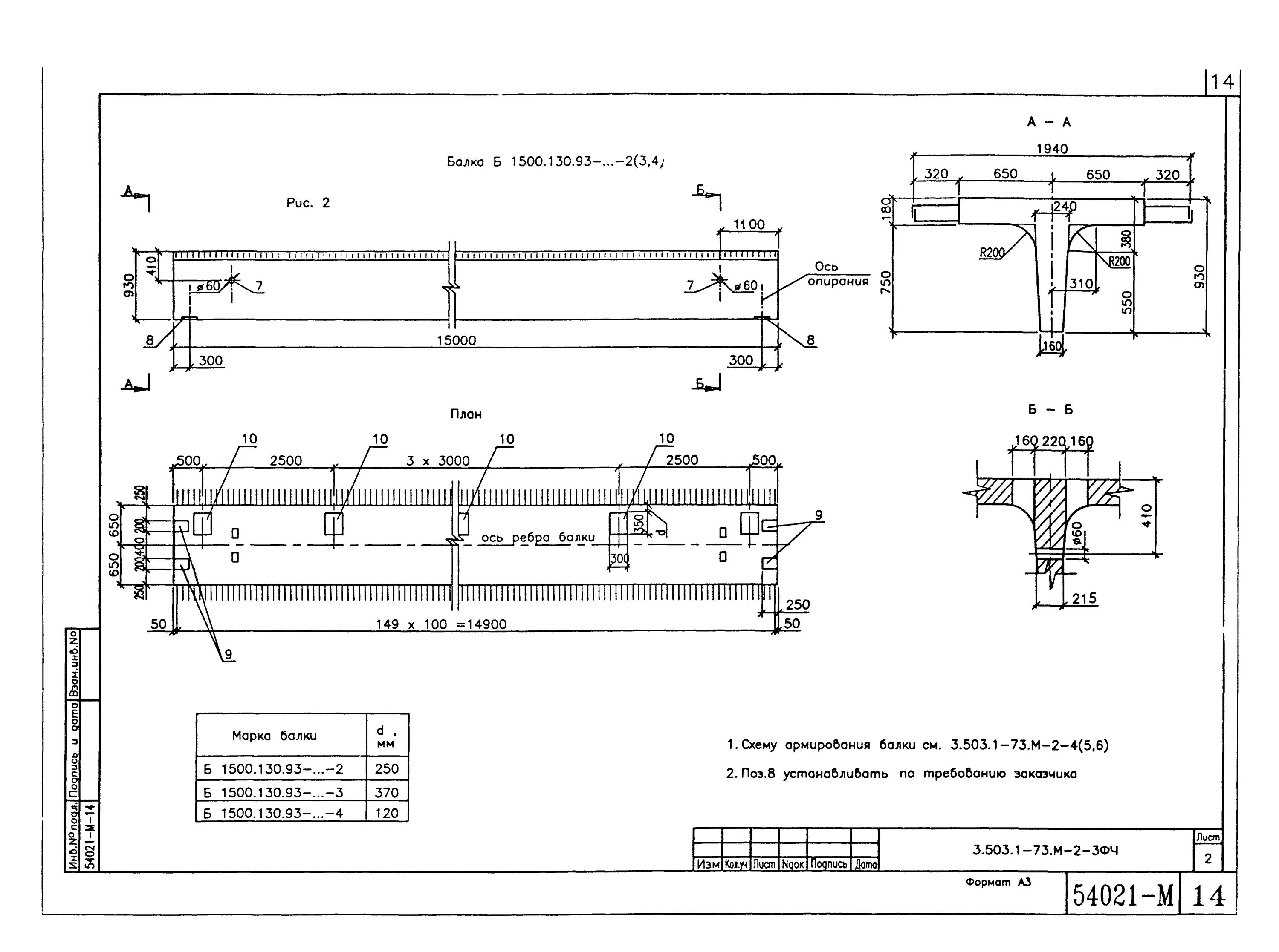
Балки строения