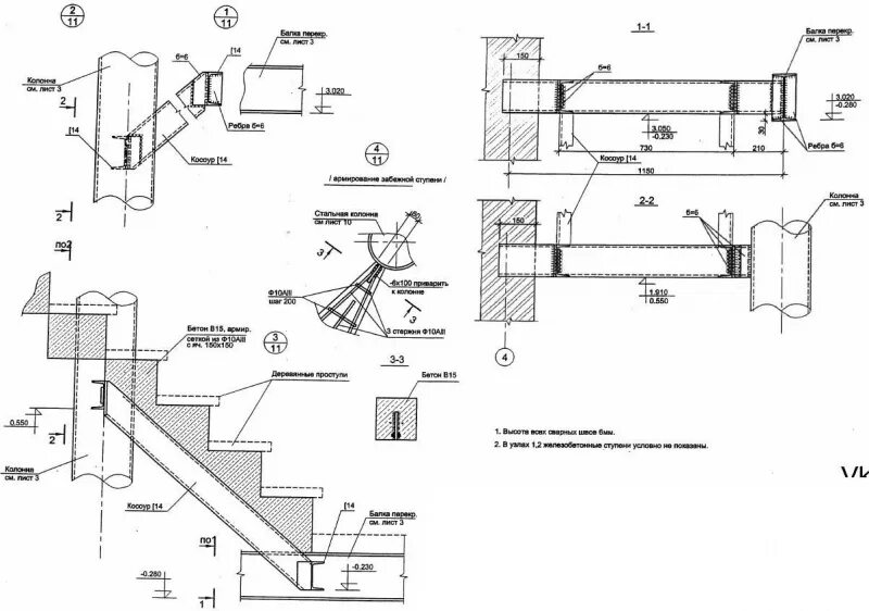
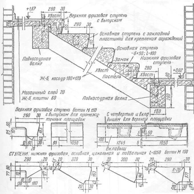
Балки лестничных маршей