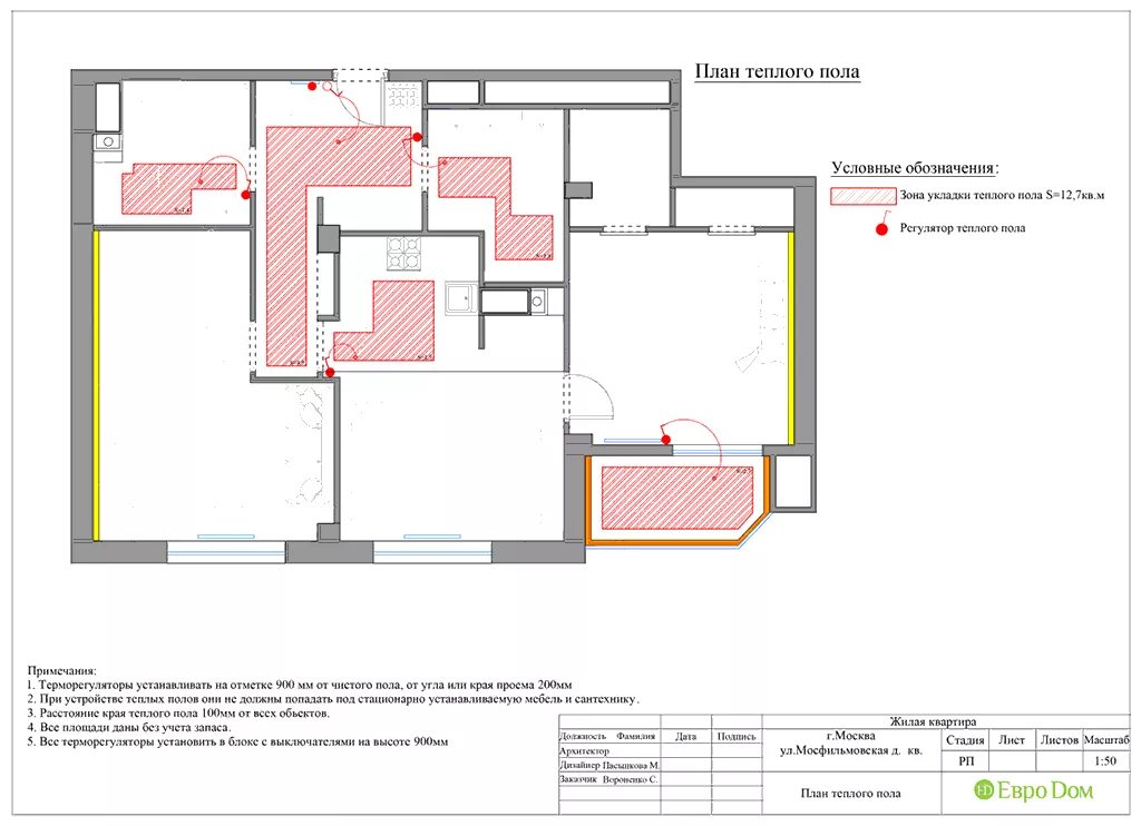
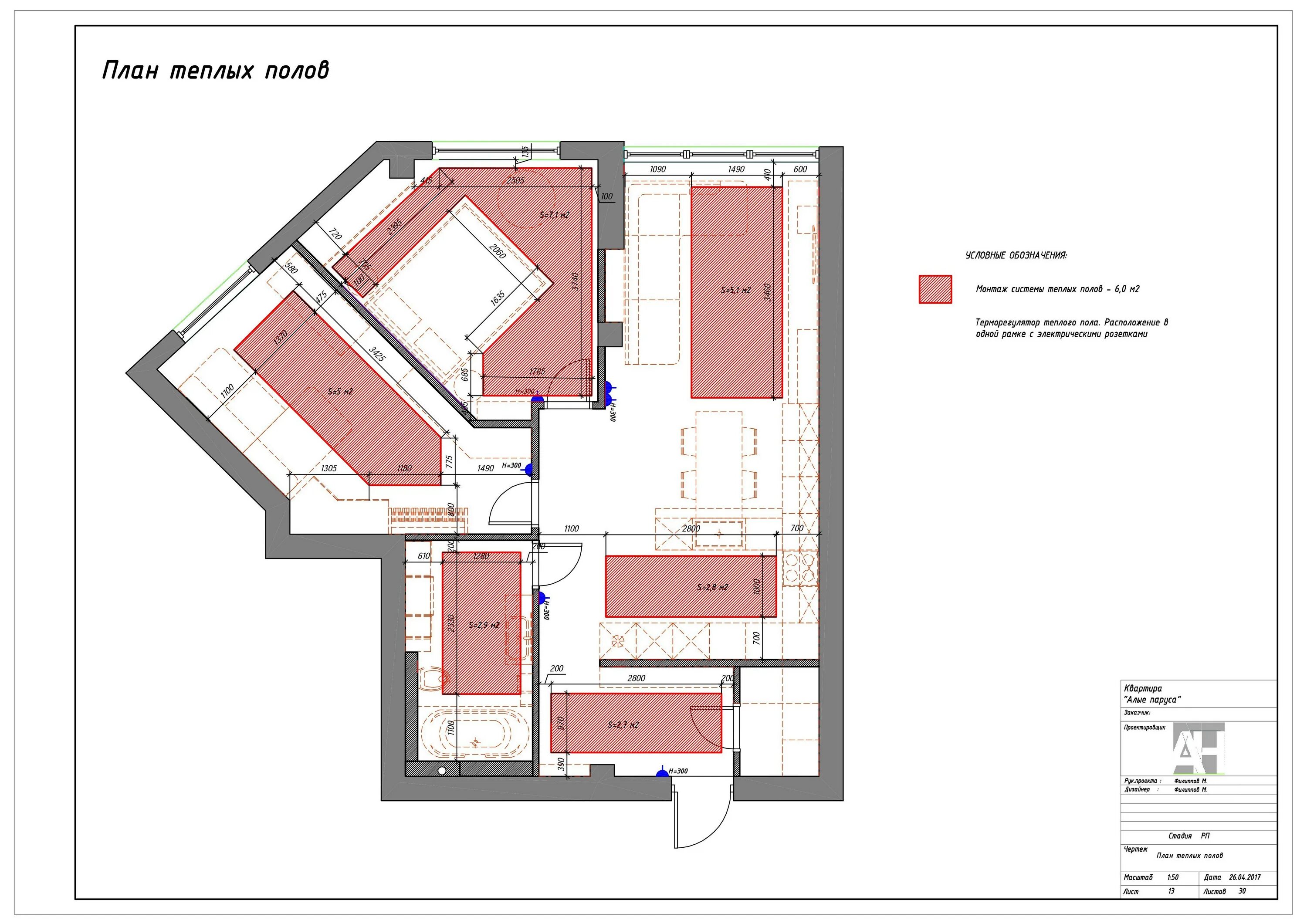
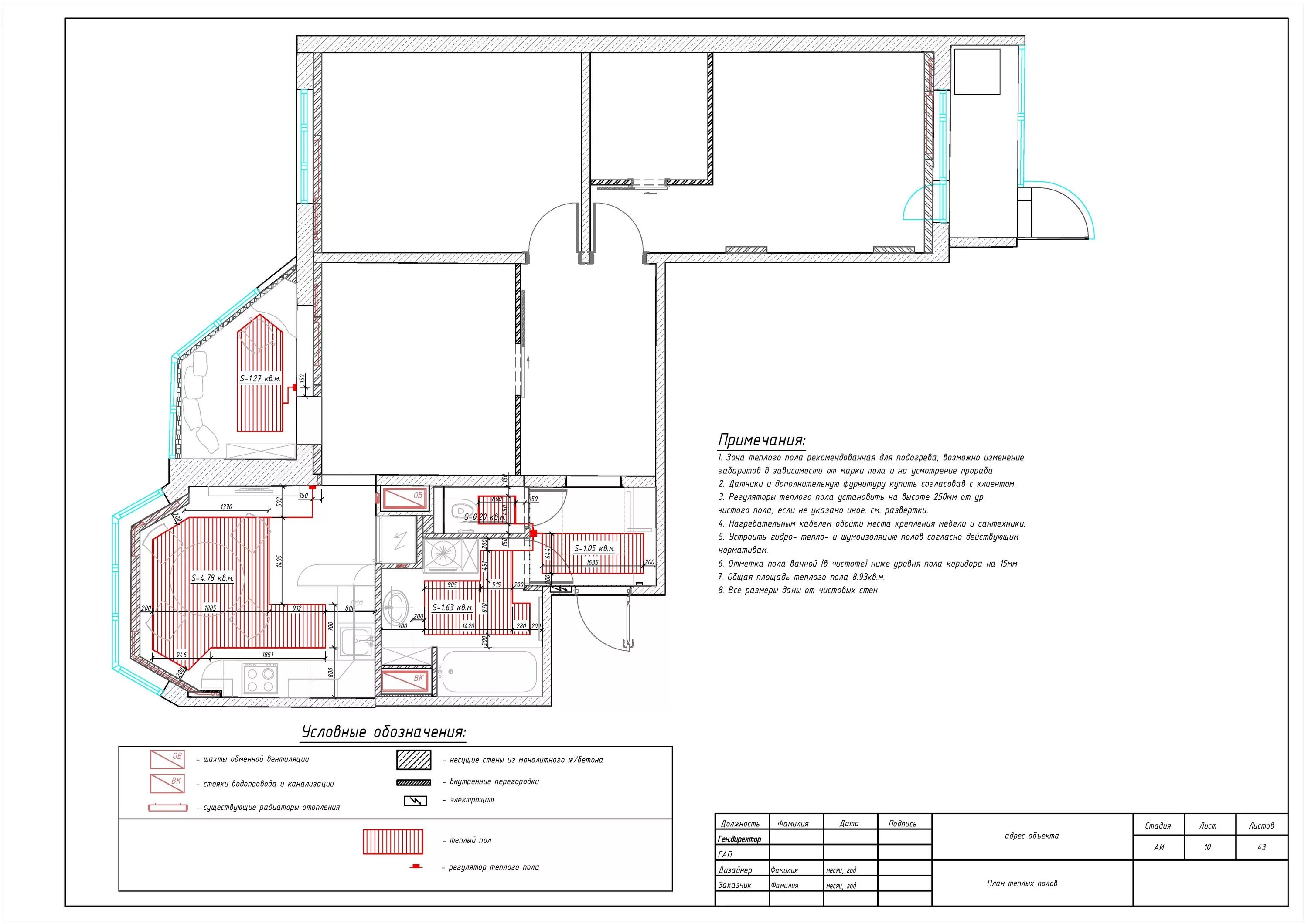
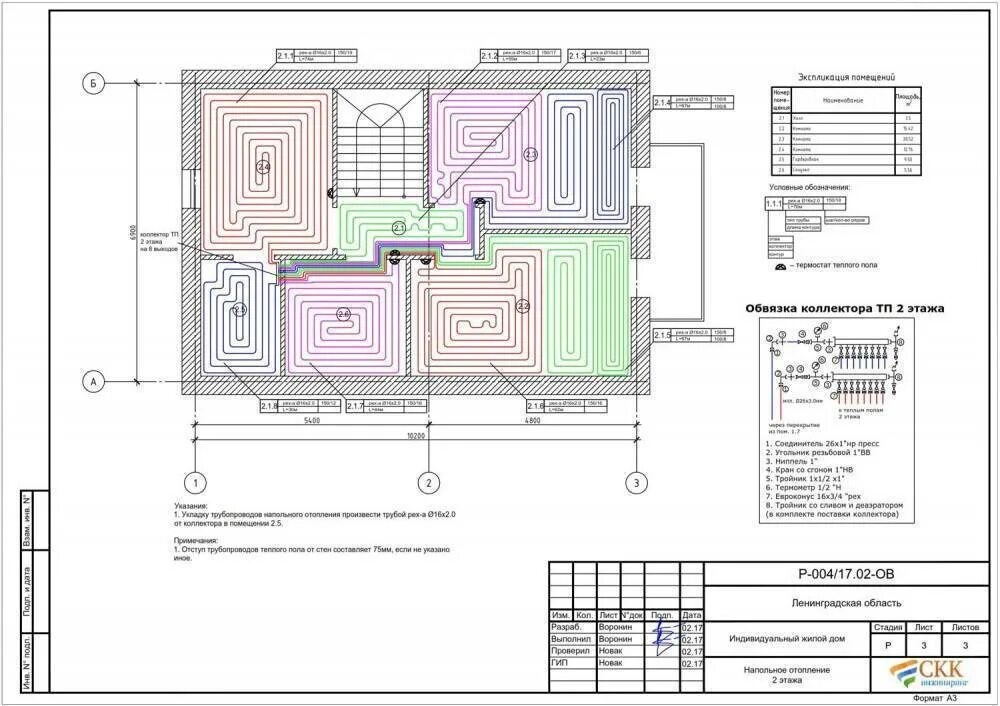
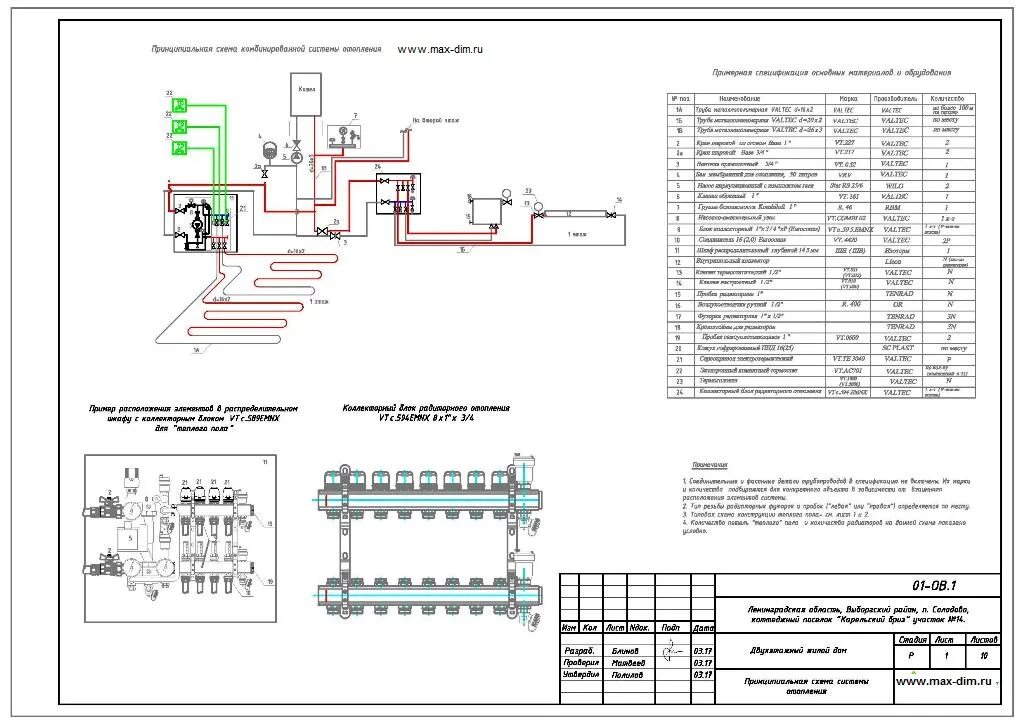
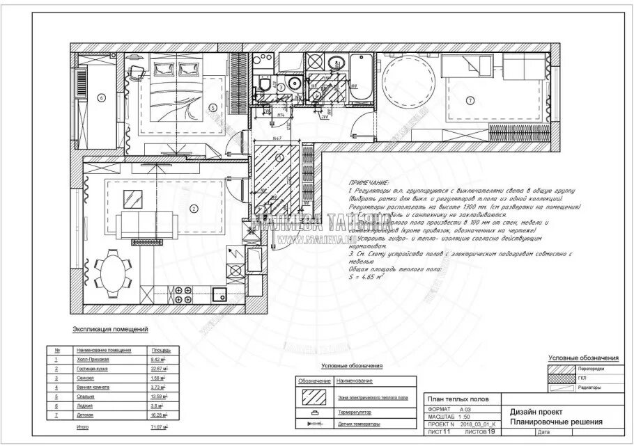
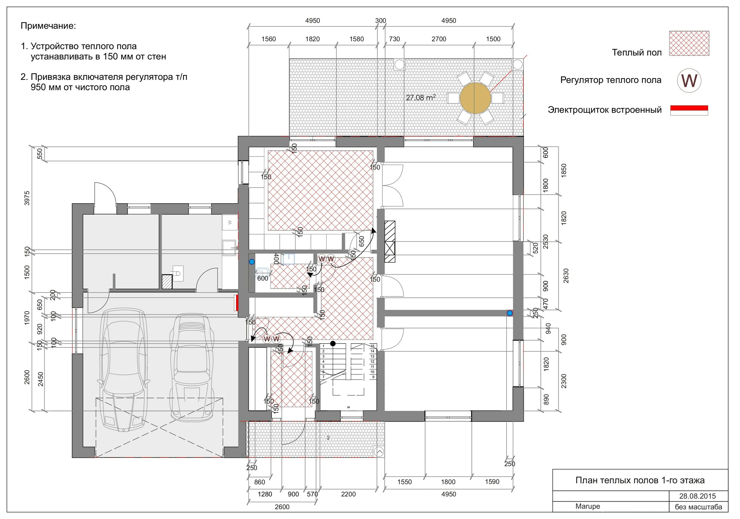
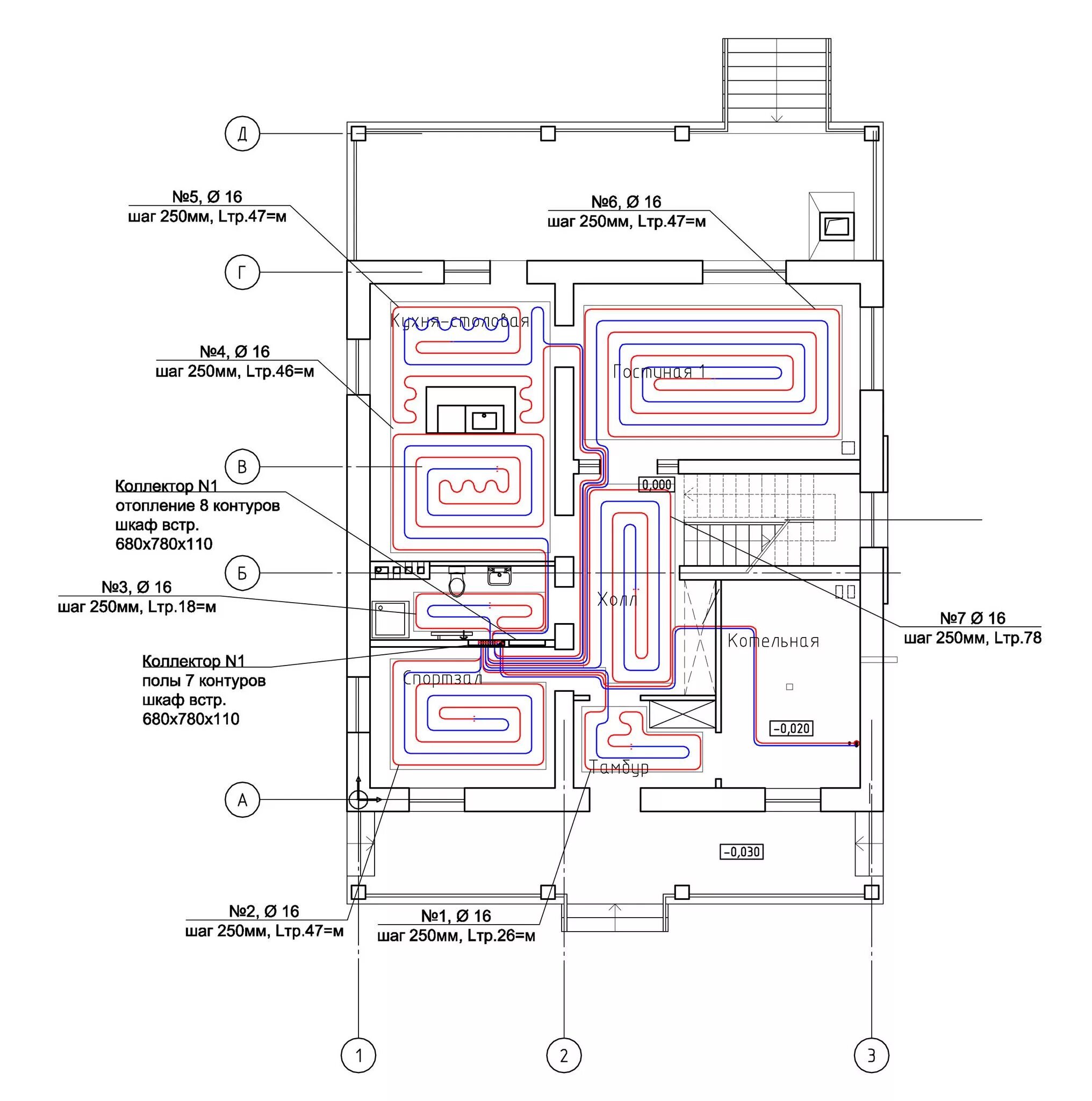
Автокад теплые полы