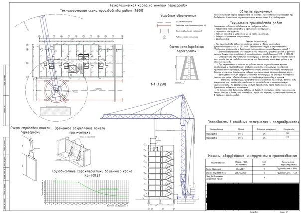
Авито курсовая работа