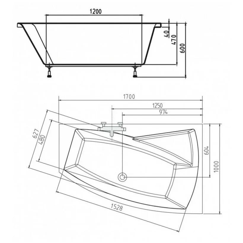
Артикул ванна