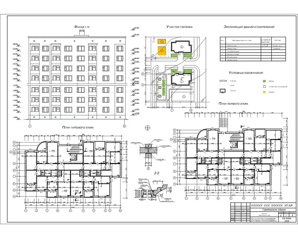
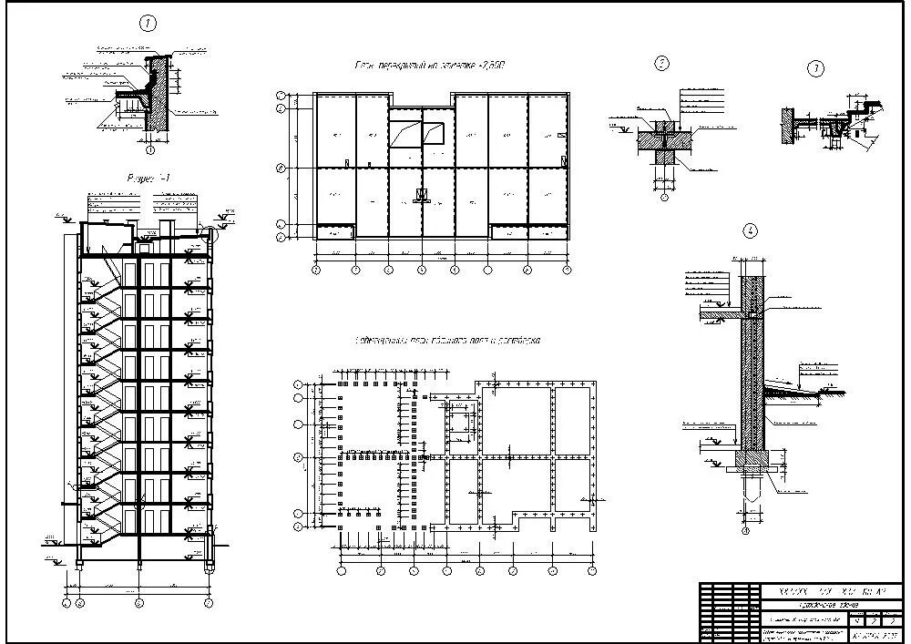
Архитектурно планировочные и конструктивные решения зданий