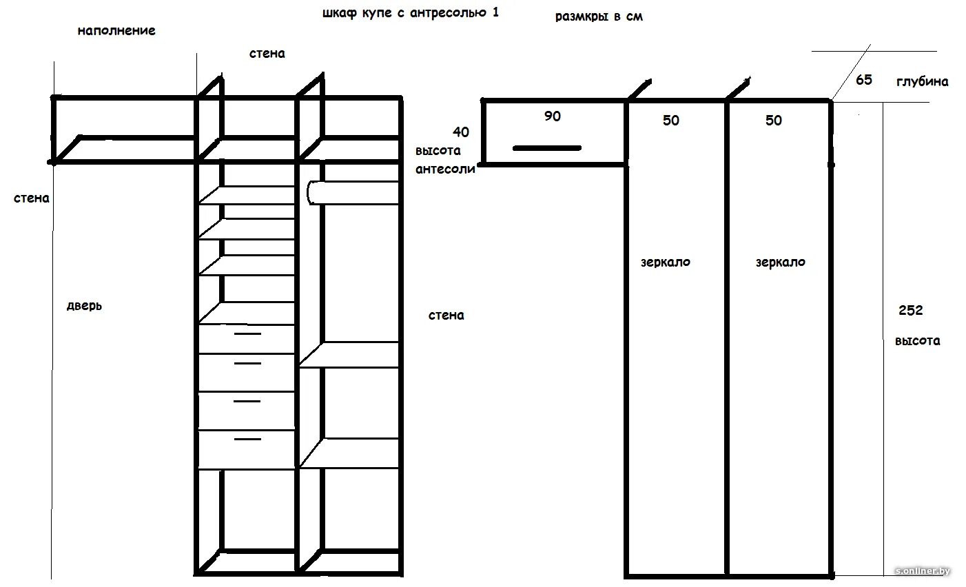
Антресоль размеры