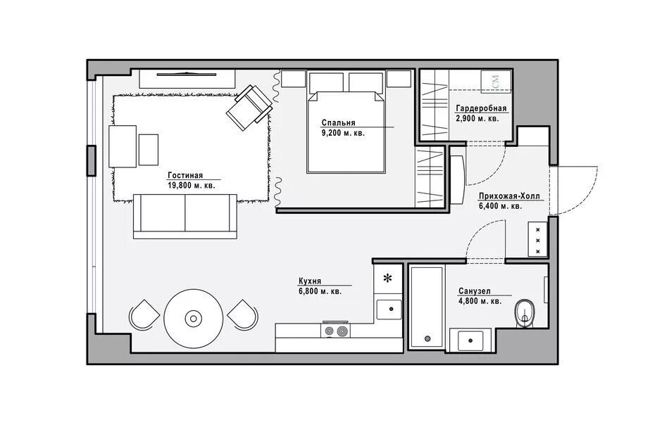
53 кв дома