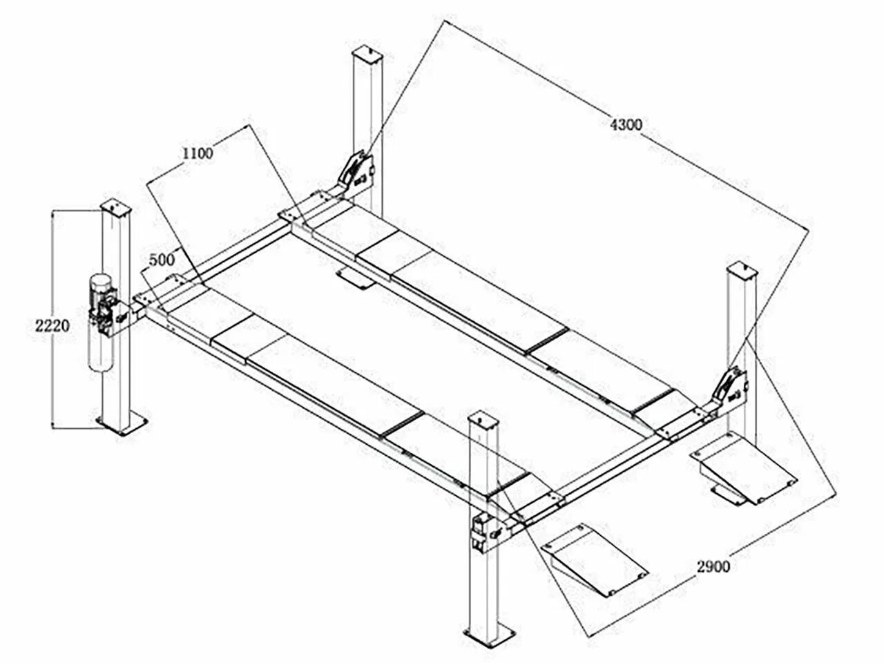
4 стоечный подъемник для сход