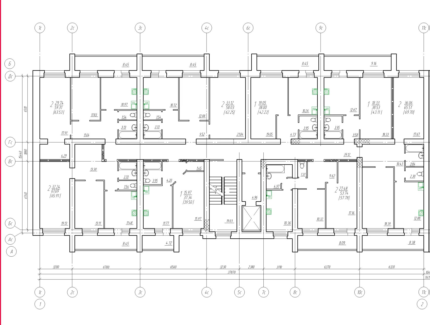
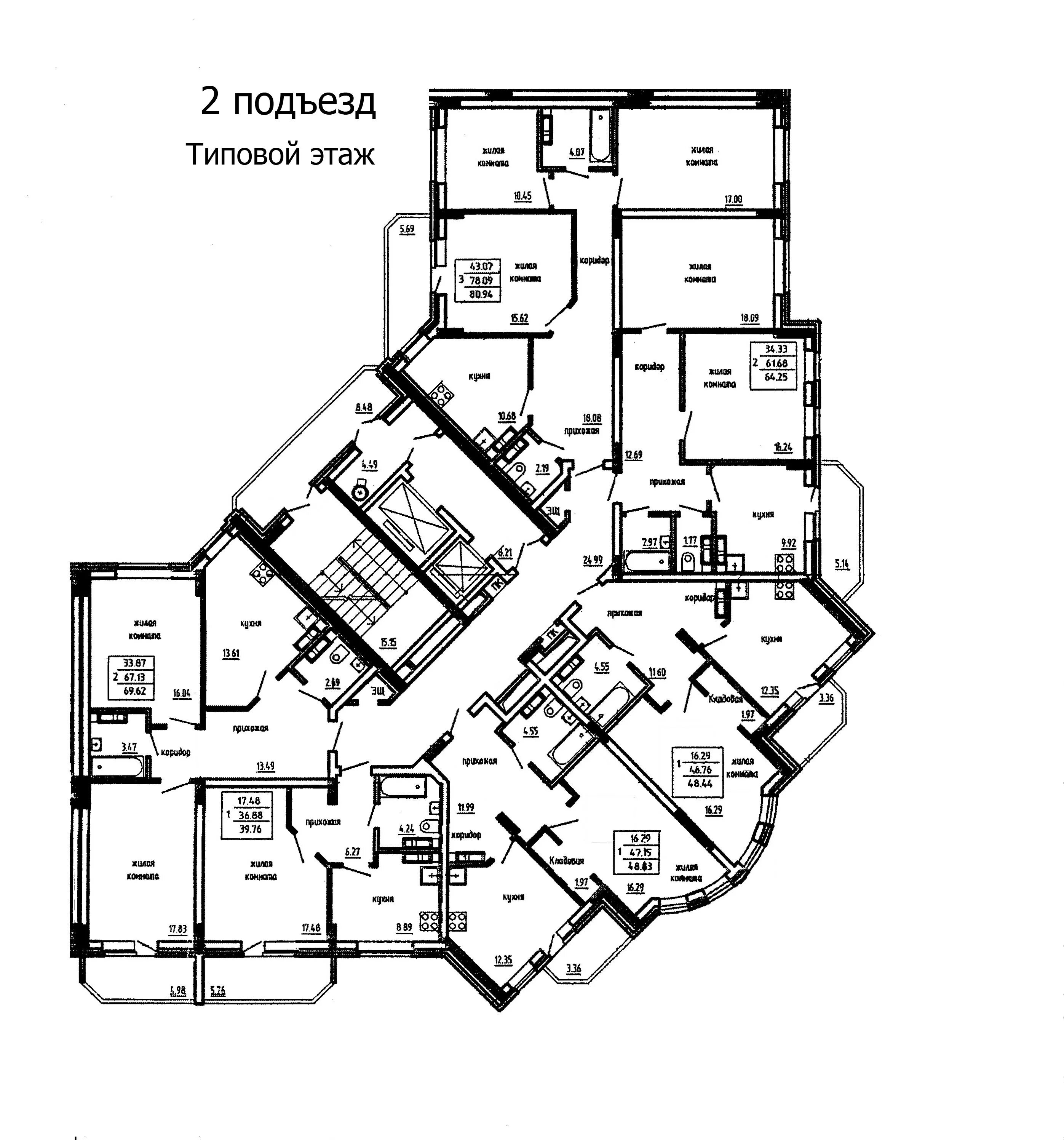
4 подъездный дом