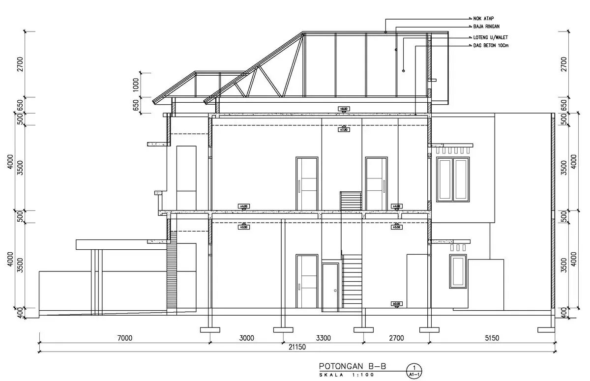
3300 2700